Prime Commercial Opportunity 37,252±SF - Warwick RI
3661 West Shore Road
Warwick, RI 02886
Description
Position your business or investment portfolio for success at 3661 West Shore Road, a highly visible commercial property along one of Warwick’s most traveled corridors. Located just minutes from T. F. Green International Airport and with convenient access to Interstate 95, this property offers exceptional connectivity for customers, employees, and clients alike.
PROPERTY OVERVIEW
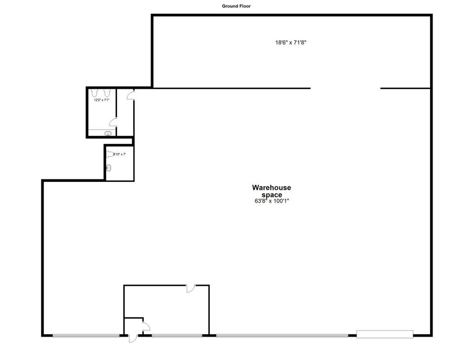
37,252± square feet of commercial space
Situated on a 2.04± acre lot
(3) Overhead doors; (1) 12'x16' & (2) 6'x8'
(2) loading docks & (2) drive-in
19ft ceilings in mezzanine - 14ft ceilings throughout
600amps from pole to building
Separate Gas & Electric meter for multiple tenant use
Zoned Light Industrial
Prominent frontage on West Shore Road
Strong daily traffic counts & excellent street visibility
Flexible commercial layout suitable for retail, office, light industrial, light manufacturing or service use
Ample on-site parking
Easy access to major highways and surrounding neighborhoods
INVESTMENT HIGHLIGHTS
Strategic location within a thriving commercial corridor
Minutes to Providence
Immediate proximity to T. F. Green International Airport
Dense surrounding residential population
Strong long-term redevelopment and repositioning potential
West Shore Road is a well-established retail and service destination serving the greater Warwick community and beyond, making this property ideal for owner-users and investors alike.
For additional information or to schedule a private tour of 3661 West Shore Road, Warwick, RI, contact the listing broker today.
West Shore Road is a well-established retail and service destination serving the greater Warwick community and beyond, making this property ideal for owner-users and investors alike.

