1752-1776 S High St.
1776 S High Street
Columbus, OH 43207
Highlights
Description
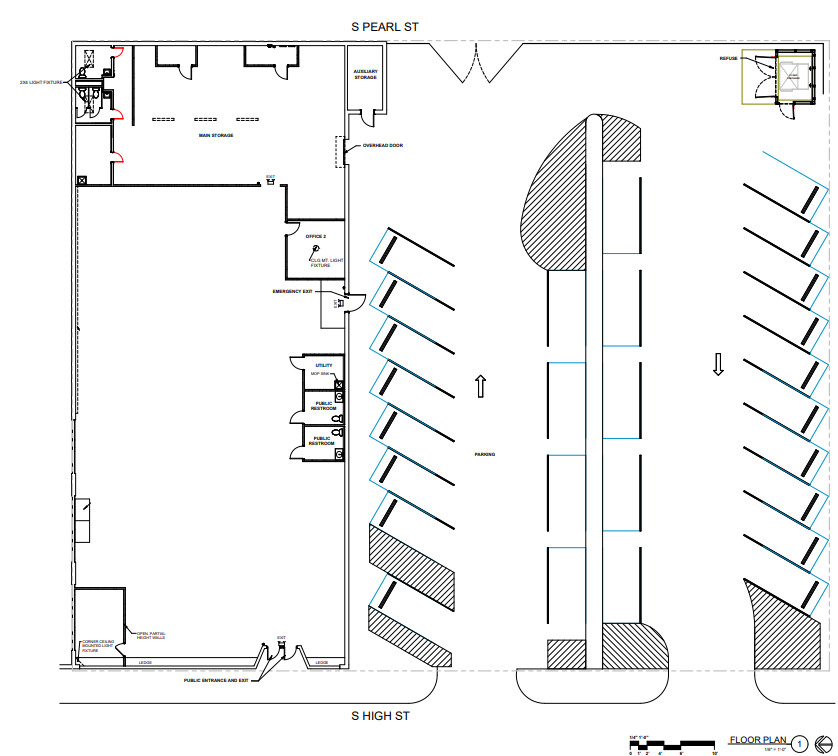
This 14,160 SF Commercial Building on S High has two highly visible storefront and sits on .72 acres. 1776 S High boasts a wide open space, was most recently a market and has been fully updated. This 9,450 SF could be available for an owner occupant or leased for a income producing property. Zoned C-4 and in the 'Zone In' within the City of Columbus provides a variety of uses and ability for future high density development. Large Signage potential, ample parking, and strong traffic counts along South High Street. 1752 has been fully renovated is currently leased by Events On High.
9,450 SF retail/flex/office building on South High Street. This property is ready to accommodate multiple business types and coming available late summer. Easily divided with 4,290 SF in front and 5,460 SF in the rear. Newly renovated with new HVAC, electrical, and finished concrete floors. This is a highly visible 9,450 SF on the south side of the building with a large parking lot. With convenient freeway access nearby, this outstanding location presents an excellent prospect in close proximity to Downtown Columbus, German Village, and all the Southside has to offer!
Highly visible and accessible retail space located just south of Downtown Columbus and German Village. Positioned at the corner of S. High Street and E. Innis Avenue, the property is surrounded by active redevelopmentāfrom The Fort in Steelton to new restaurants in Merion Village and the broader resurgence of the South Side. This central location offers excellent connectivity, just minutes from I-71 via Greenlawn Avenue and OH-104, and features a large private parking lot.
Documents
1776 S High - Lease Flyer1752-1776 S High St Sale/Lease Flyer
Units for Lease
Price Per Sqft/Year: $10.00

