Alabaster YMCA
117 Plaza Cir
Alabaster, AL 35007
FOR SALE
Property Type:
Schools/EducationAmount:
$4,200,000
Last Verified:
Feb 09, 2026Daily Email Blast
0 times
Highlights
- Ideal for school or special purpose use
- Spacious classrooms and common areas
- Ample parking for staff and visitors
- Convenient access to major roads and highways
- Flexible layout for various educational programs
- Opportunity for expansion and growth
Description
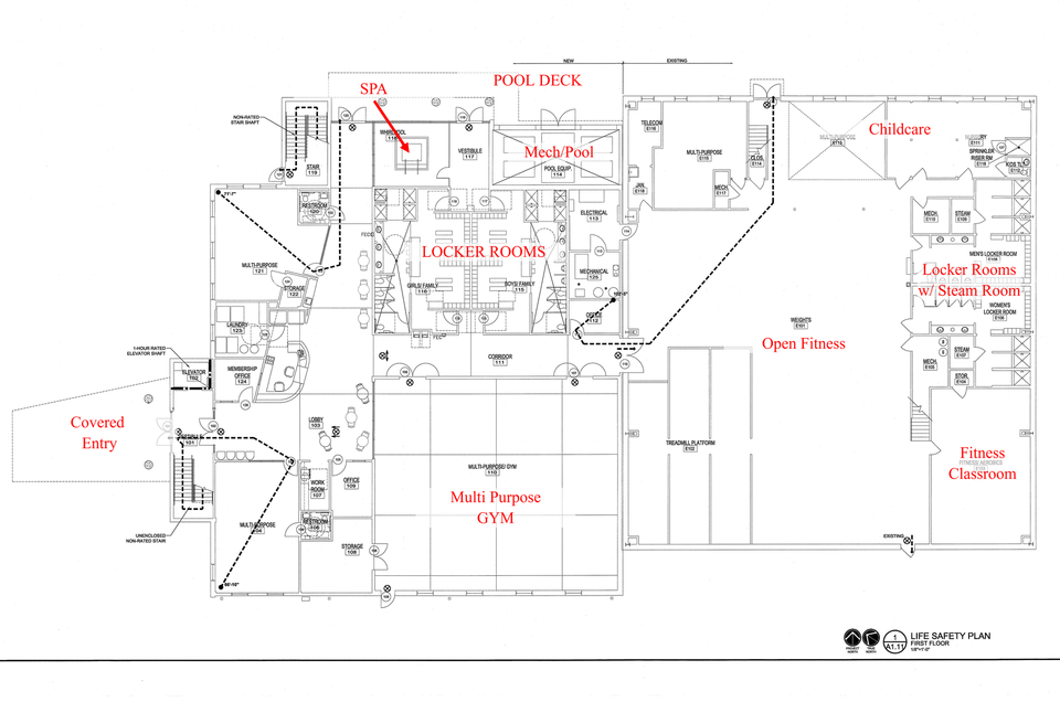
+/-33,730sf former YMCA facility on 3 acres of land. Additional land up to 40 total acres are available, call for pricing. The facility features: 2 story office, admin and class room building with locker rooms and hot spa, 1.5 story fitness facility with saunas, child care facilities, 1/2 court gym with 2 pickleball courts, Olympic size swimming pool with full ramp access, fully sprinkled. Excellent opportunity for a school, gym, church or other special purpose user to back fill. Property could also be converted into large corporate flex office with the fitness building being utilized as warehouse space.
Just off Hwy 119 at the end of Plaza Cir
Building Size: 33730sq ft
Lot Size: 0 acres

