Commercial Building with Optional Business & Equipment Package

555 Cortland Rd Groton, NY 13073

555 Cortland Rd, Groton, NY, 13073
555 Cortland Rd, Groton, NY, 13073 555 Cortland Rd, Groton, NY, 13073 555 Cortland Rd, Groton, NY, 13073 555 Cortland Rd, Groton, NY, 13073 555 Cortland Rd, Groton, NY, 13073 555 Cortland Rd, Groton, NY, 13073 555 Cortland Rd, Groton, NY, 13073 555 Cortland Rd, Groton, NY, 13073 555 Cortland Rd, Groton, NY, 13073 555 Cortland Rd, Groton, NY, 13073 555 Cortland Rd, Groton, NY, 13073 555 Cortland Rd, Groton, NY, 13073 555 Cortland Rd, Groton, NY, 13073 555 Cortland Rd, Groton, NY, 13073 555 Cortland Rd, Groton, NY, 13073
FOR SALE
Property Type:
Factory
Amount:
$589,900
Last Verified:
Nov 26, 2025

Daily Email Blast
0 times


Highlights

  • Groton Low-Cost Municipal Power
  • Radiant Heated Floors
  • Low-Maintenance Steel Building
  • Corner Location

Description

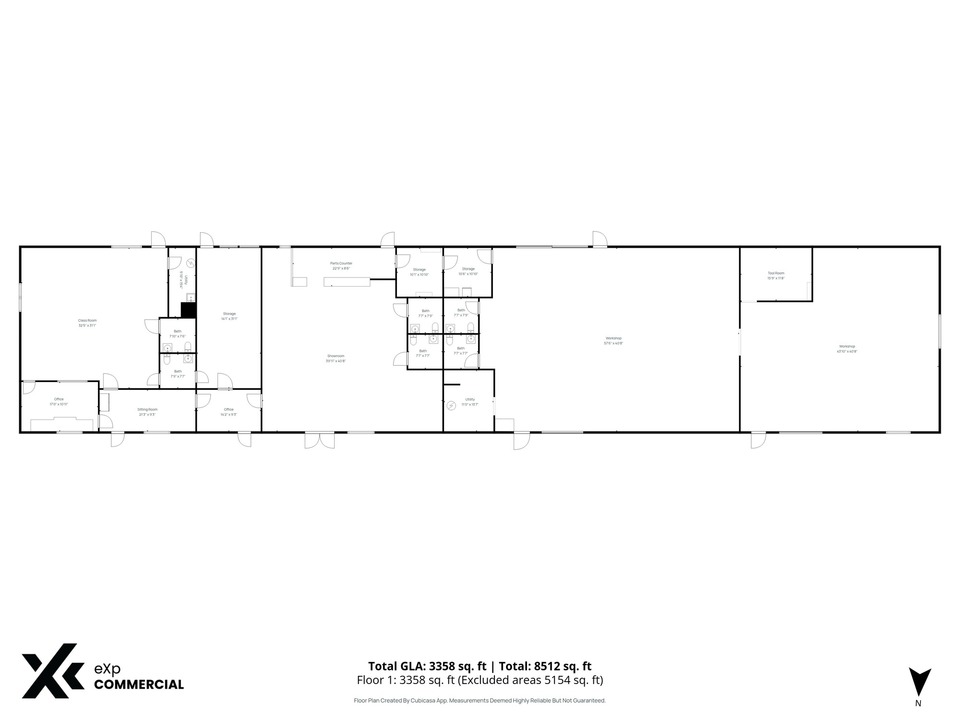
Groton Cycle, located at 555 Cortland Road in Groton, New York, offers an 8,736 SF steel-skin, steel-roof commercial building situated on 4.37 acres at the corner of Cortland Road and Lick Street. Built in 2005, the property is configured for sales, service, and light manufacturing uses, currently operating as a motorcycle dealership and repair facility. The site features a showroom, parts area, office, and repair bays, all supported by 40 vehicle parking spaces located at the front.

A one-acre paved riding course is located at the rear of the property and can easily be repurposed for expanded parking, outdoor storage, or contractor yard use. The location offers excellent visibility and corner access, situated between Ithaca and Cortland in a rural trade area that attracts both local traffic and regional destination users.

The property is zoned High Intensity. It is suitable for a range of potential users, including small manufacturing operations, landscaping businesses, light industrial repair services, recreational vehicle or equipment sales, and contractor trades. The building could also be divided to accommodate multiple tenants.

The sale includes the Real estate for $589,900, with the option to purchase the existing 20-year business, Groton Cycle, and its related assets, tools, and inventory under separate terms. The company boasts strong name recognition and consistent annual gross sales. Seller financing is available for the business assets; the Real estate sale must be completed via cash or bank financing.

Located on the SWC of Cortland Rd and Lick Street in the Village of Groton, NY.


Year Built: 2005
Building Size: 8736sq ft
Building Class: C
Lot Size: 4.37 acres


Documents

Groton Cycle Brochure
Floor Plan
Zoning GR1261-200c Schedule II.pdf

Map of 555 Cortland Rd, Groton, NY, 13073

Presented by:

Request additional information


Send a message
Share this Listing

Not Interested In This Property? TheBrokerList.com Can Help
Looking for an office, retail space, warehouse or anything else?
Contact a Licensed Member Today

What are Real Estate Incentives?

Real Estate incentives range widely and have been overlooked by the Commercial Multiple Listing Services (MLS) for decades. Real estate incentives is a generic term used to group any number of programs, such as tax incentives, that are designated by an agency for a geographic area."

Why are Real Estate Incentives Important and to Whom?

"Incentives" are vital today and in the future because:

  • U.S. Public: Many incentives focus on job creation and Affordable Housing
  • Investors and Commercial Developers use incentives to reduce financial risk, obtain gap financing, etc. Investors and developers look for property listings with incentives available.
  • Commercial Real Estate Brokers, in mass, unfortunately do not know about incentives tied to their listings
  • Entire Supply Chain of Real Estate Development such as small and large companies who will provide goods and services to new and revitalized properties.