Former Beth-El Zedeck Synagogue
3359 Ruckle Street
Indianapolis, IN 46205
FOR SALE
Property Type:
Other HospitalityAmount:
Please Call Broker for PriceLast Verified:
Sep 18, 2025Daily Email Blast
0 times
Highlights
- The architects for the building are the famous Kurt Vonnegut Sr. and Arthur Bohn.
- The seller has made extensive repairs to the building, including a new roof, windows, and asbestos remediation. (Circa 2015)
- The property is on the National Register of Historic Places.
Description
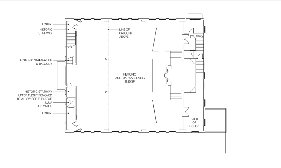
Nestled in the Mapleton-Fall Creek neighborhood, this 15,590 SF building is the former home of Congregation Beth-El Zedeck. The synagogue was built in 1925 and is the oldest standing Jewish synagogue in Indianapolis. Since then, it has been a place of worship for numerous churches and is a prime opportunity for redevelopment. The two story exterior boasts buff brick with limestone and terra cotta trim.
TBD
Year Built: 1925
Building Size: 15590sq ft
Lot Size: 0.3 acres

