Heart of Temple Terrace: 1.74 +/- AC Commercial Development SIte.
8447 N 56th Street
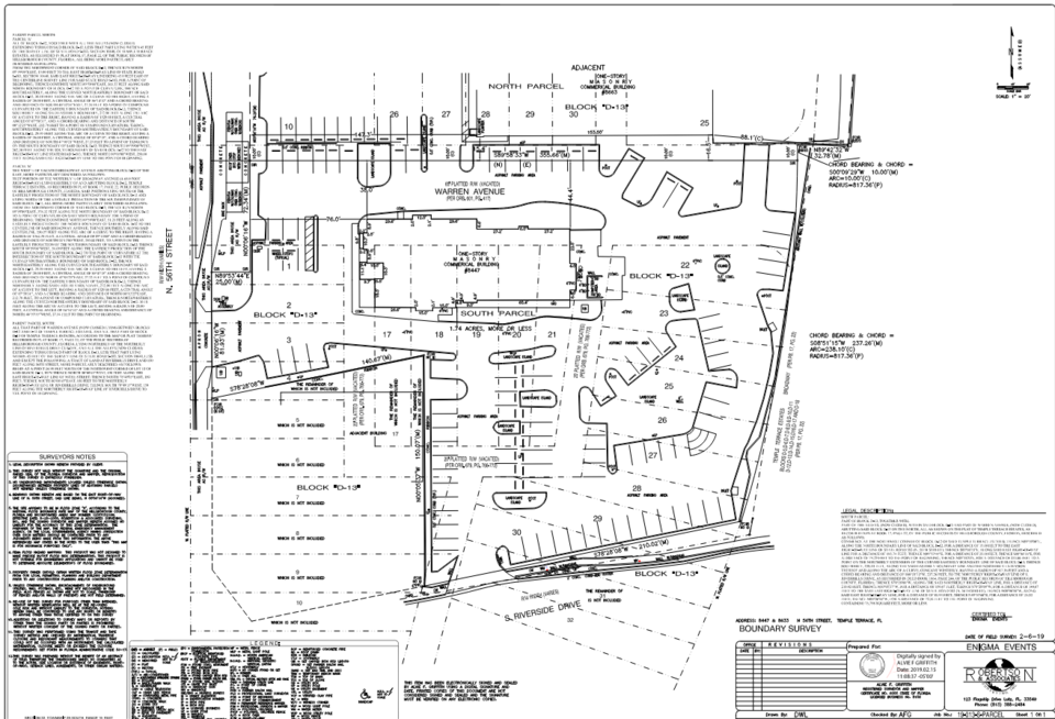
Temple Terrace, FL 33617
Highlights
- Excellent proximity to the USF, Busch Gardens, and Moffitt Medical Markets
- Zoned Commercial General, offering versatile usage
- 165' frontage on N 56th Street, 200' on South Riverhills Dr.
- 40,000 Average Daily Traffic for maximum visibility
- Ideal for Hotel, Restaurant, Craft Brewery, or Destination Retail establishments
- Ample land for outdoor settings, entertainment venues, and parking
- Future land use designated as Downtown Mixed Use (DMU-35)
Description
Introducing an exceptional commercial property located at 8447 N 56th Street, Temple Terrace, FL, 33617. This 1.74 acre parcel boasts a prime location in the Tampa area with 165' of frontage on N 56th Street and 200' of frontage on South Riverhills Dr. With 40,000 Average Daily Traffic, this property presents an excellent opportunity for a variety of uses such as Hotel, Restaurant, Craft Brewery, or retail, drawing from the USF, Busch Gardens, and Moffitt Medical Markets. Zoned Commercial General and future land use Downtown Mixed Use (DMU-35), this property offers ample space for outdoor settings, entertainment venues, and parking, making it an ideal investment for a prospective investor.
Discover the vibrant potential of the Temple Terrace neighborhood in Tampa, FL. Just minutes away from the property, you'll find the popular Busch Gardens theme park, a major draw for tourists and locals alike. The nearby University of South Florida brings a constant influx of students, faculty, and staff to the area, providing a steady stream of potential customers for retailers.
With convenient access to major roadways, the location offers high visibility and accessibility to a diverse customer base. The property has frontage on both N 56th Street and Riverhills Drive. The property is also adjacent to the Springdale Outfall Pond area a park like area that is part of the City of Temple Terrace initiated development of a Pedestrian Master Plan.
Take advantage of the bustling activity and strategic positioning of this dynamic Tampa market to elevate your investment in 8447 N 56th Street.

