Heider Building
219 S Bridge St
Sheridan, OR 97378
Highlights
- 4 retail units
- 8 apartments upstairs (1-studio, 3- 1bdrm, 3- 2 bdrm, 1 - 3 bdrm)
- 1 studio apartment downstairs
- Potential grant money available
Description
The century-old Heider Building has had much work done to it to position it with four street-front retail locations, and eight (8) second-floor walkup apartment units, and one ADA unit on the first floor. Much of the engineering and seismic work has been finished and there is potentially grant money available to assist with finishing the electrical and plumbing. We are seeking a buyer with success doing infill rehabilitation projects like this who can take it to the finish line.
Please contact the listing agents to learn more about possible grant money available to assist with the remodel costs; timing of closing; and to get access to additional due diligence information on this great rehabilitation opportunity.
Yamhill County is one of the world's finest wine regions and Sheridan is known as the gateway to the Oregon Coastal Mountains and the beautiful Nestucca Watershed. Sheridan's population is around 6,300 and is within a 15-minute drive to both McMinnville OR, and Spirit Mountain Resort and Casino in Grand Ronde. Sheridan is also home to the Federal Correction Institution, which houses up to 1900 inmates and is the largest employer in the market.
Documents
219 Bridge St Sheridan Brochure 10-01-2025P21 HEIDER BUILDING SHERIDAN PLUMBING.pdf
C22 HEIDER BUILDING SHERIDAN PAVING.pdf
C23HEIDER BUILDING SHERIDAN_ SITE DETAILS.pdf
E__HEIDER BUILDING SHERIDAN_HeiderBldg3may23 Model (1).pdf
REVISED SHEET A221 UPPER FLOOR SCHEDS AND SOFFITS.pdf
REVISED SHEET A222 UPPER FLOOR DIMS.pdf
S21 HEIDER BUILDING SHERIDAN FOUNDATION.pdf
S23 HEIDER BUILDING SHERIDAN SECOND FLOOR FRAMING AND WINDOWS.pdf
S22 HEIDER BUILDING SHERIDAN SECONF FLOOR FRAMING AND PLUMBING.pdf
S42 HEIDER BUILDING SHERIDAN EXTERIOR WALL FRAMING.pdf
S41 HEIDER BUILDING SHERIDAN STAIR DETAILS.pdf
A00 HEIDER BUILDING SHERIDAN COVER.pdf
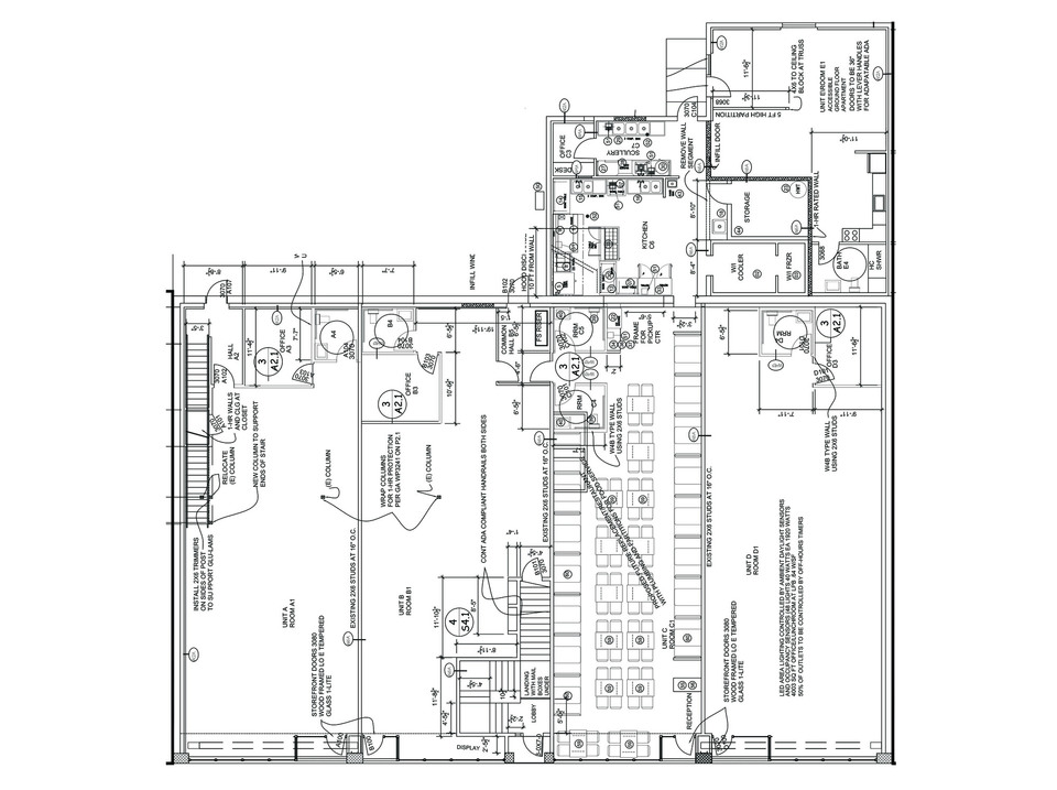
A21 HEIDER BUILDING SHERIDAN MAIN FLOOR PLAN (2).pdf
A22 HEIDER BUILDING SHERIDAN UPPER FLOOR PLAN.pdf
A32 HEIDER BUILDING SHERIDAN ELEVATIONS AND DETAILS.pdf
A31 HEIDER BUILDING SHERIDAN ELEVATIONS AND STOREFRONT.pdf
A71 HEIDER BUILDING SHERIDAN SCHEDULES.pdf
C21HEIDER BUILDING SHERIDAN_ SITE.pdf
Grant Agreement - Heider Building (3).pdf
MSR-22-25_Grant_Agreement_-_Rev_signed_083901996 (4).pdf
OMSRGrantGuidelines_2022.pdf

