Lake Whitney
NW Lake Whitney Place
Port St. Lucie, FL 34986
Highlights
- Turn key construction & interior build out
- Full time maintenance manager on site
- Generous on-site parking with high intensity security lighting (5 spaces per 1000 sq. ft.)
- Building directory signs identifying occupants
- Hurricane impact resistant glass on all windows and front doors
- Fully insulated glued down flooring system with S barrel tile Mediterranean roof and a 10 year warranty
- Kitchenette including refrigerator, microwave oven and sink in each unit
- Private fully furnished bathroom (Handicapped Accessible)
Description
Lake Whitney Medical and Professional offices are conveniently located on the corner of NW Lake Whitney Place and Peacock Blvd in the heart of St Lucie West. The property is well-located with access to I-95 (exit121) less than 1 mile away and only minutes from the Florida Turnpike (exit 142). With a residential population in excess of 277,789 within a 10 mile radius and a median income of $61,593. This property is well-positioned to service the surrounding residential subdivisions of St Lucie West and Fort Pierce.
St Lucie County’s population and workforce, on average, is younger, more diverse, and twice the size of any other county comprising Florida’s Research coast. Population growth in St Lucie county is expected to be close to half a million by the year 2030. With hits impressive growth, St Lucie and the Research Coast will be a better place to do business.
Documents
291 NW Peacock Blvd. - Sublease Flyer573 NW Lake Whitney - Lease Flyer
585 NW Lake Whitney - Lease Flyer
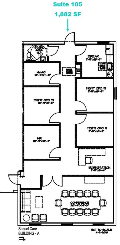
Units for Lease
Price Per Sqft/Year: $23.00
Price Per Sqft/Year: $25.00
Price Per Sqft/Year: $25.00
Price Per Sqft/Year: $23.50
Price Per Sqft/Year: $26.00

