VALUE ADD. Net Investment.
243 Catoma St
Montgomery, AL 36104
Highlights
Description
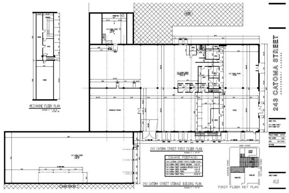
Welcome to 243 Catoma St, Montgomery, AL, a prime industrial property presenting a compelling opportunity for savvy investors. This expansive 68,000 SF building, comprising 5 units, boasts a rich history as the original McGough Chevrolet Dealership, while recently benefiting from a comprehensive 2019 renovation. With a strategic T-2 Smart Code zoning and an enviable 96% occupancy rate, this property is perfectly positioned in the heart of Montgomery's CBD area. Boasting modern features such as 2 truck doors, 5 ground level doors, and a new roof and windows for ample natural light, this facility is primed for immediate occupancy.
Presenting a prime leasing opportunity in Montgomery's CBD area. This versatile warehouse/flex space, located at 243 Catoma St, offers a new roof and windows, flooding the interior with abundant natural light. Equipped with excellent parking and a sprinkler system, this property is ready for immediate occupancy, providing a seamless transition for your company. Situated on three streets and just 1.1± miles from the I-85/I-65 interchange, this location offers convenience and accessibility. As part of an Opportunity Zone, this space presents a compelling opportunity for businesses seeking a strategic and flexible property solution.
Investment Retail / Warehouse/ Flex space located in Downtown Montgomery, close to I-65, and located on three streets: 243 Catoma St., 523 Bibb St. & 134 Wilkinson St.
Documents
243 Catoma_Offering Memorandum243 Catoma St_Sale Brochure
Lease Brochure 243 Catoma St V2
Units for Lease
Price Per Sqft/Year: $3.75 - $4.25
Price Per Sqft/Year: $4.00

