±1,893 SF of Professional Office Space Off Ave 26
3275 E Robertson Blvd
Chowchilla, CA 93610
Highlights
- ±1,893 SF Professional Office Space Available 6/1/2026
- Well-Known Freestanding Office Building + Parking
- Move-In Ready Condition w/ New Finishes
- Private Offices, Large Bullpen, Large Conference Room
- Located In a Densely Populated Trade Area
- Convenient Location Directly Off CA-99
- Excellent Presence Surrounded with Quality Tenants
- Great Access & Visibility w/ Unmatched Level of Consumer Traffic
- Busy & Established Retail Corridor w/ Direct Access to CA-99
- Perfect For Small Real Estate Firm, Mortgage Firm, Attorney Practice Etc.
- Located Near Professional Offices, Banks, Restaurants & Shopping
Description
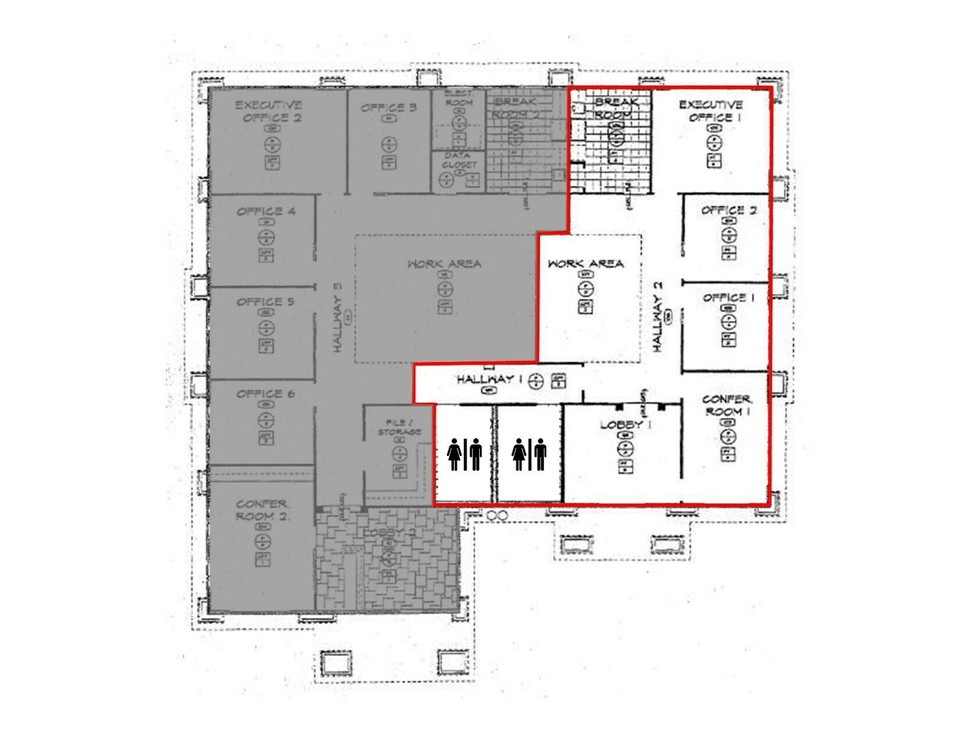
±1,893 SF space available 6/1/2026: Move-In ready office space that consist of (3) private offices, (1) conference room, lobby, large breakroom and large bullpen area. The building has it's own private parking lot (plus street) and is perfect for attorney practice, medical uses, professional office, and more. This building is located on a corner parcel which, provides excellent visibility & easy access to all parts of Chowchilla & neighboring cities such as Madera, Merced, Dos Palos, Firebaugh, Fresno, & many others!
Attractive freestanding office building located off Ave 26 on manicured grounds and lush landscaping. Property is located North of Golf Dr W, South of S Lake Tahoe Dr, West of Clubhouse Dr, and East Fig Tree Rd. Location provides easy nearby access to Highway 99 on/off ramps and to several nearby retail amenities.
Chowchilla, California, in Madera county, is 17 miles SE of Merced, California and 37 miles NW of Fresno, California. The city is conveniently located inside the Fresno metropolitan area. The city of Chowchilla features a number of parks and recreational facilities. You can also find a number of sports facilities including a softball complex, baseball field, children's playgrounds, basketball court and a soccer complex. In addition, the city offers bars, casinos, restaurants and shopping centers.
Documents
3275 E Robertson Blvd, Chowchilla, CA 93610 FlyerUnits for Lease
Price Per Sqft/Month: $1.15

