10720 Lexington Drive, Knoxville, TN, 37932
10720 Lexington Drive
Knoxville, TN 37932
FOR LEASE
Property Type:
Other IndustrialAmount:
Please Call Broker for PriceLast Verified:
Mar 06, 2026Daily Email Blast
0 times
Description
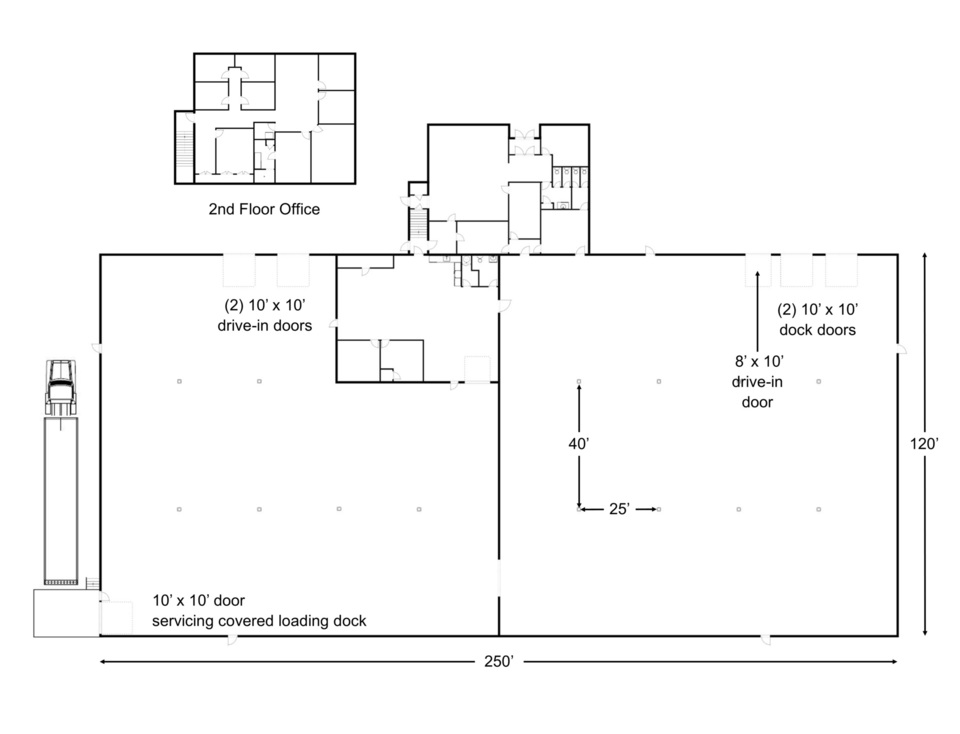
35,000 square foot industrial building available for lease in west Knoxville. The building is fully climate controlled, has 3 dock doors and 3 drive-in doors.
Located in west Knoxville and within 0.5 miles of I-40 / 75.
Building Size: 35000sq ft
Lot Size: 0 acres
Documents
10270 Lexington Drive - brochureUnits for Lease
10720 Lexington Drive
Space Available: 35000 SF
Lease Type: NNN
Price Per Sqft/Year: $8.50

