108,000 SF Warehouse Near Lambert Airport Available for Lease or Purchase!
8801 Frost Avenue
Berkeley, MO 63134
FOR SALE
FOR LEASE
Property Type:
FactoryAmount:
$9,200,000
Last Verified:
Jul 10, 2025Daily Email Blast
0 times
Highlights
Description
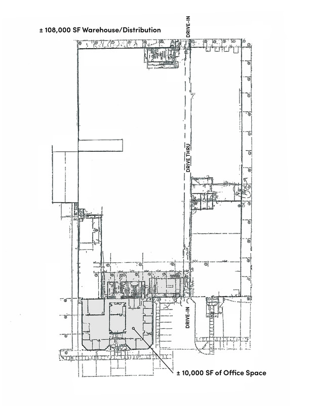
+/- 108,000 SF warehouse facility available for purchase near Lambert International Airport.
+/- 108,000 SF warehouse facility available for lease near Lambert International Airport.
Prime Owner/User & Warehouse/Distribution facility with direct access from 170 in the Airport Industrial Submarket.
Building Size: 108000sq ft
Lot Size: 6.33 acres
Documents
8801 Frost Avenue BrochureUnits for Lease
A
Space Available: 108000 SF
Lease Type: NNN
Price Per Sqft/Year: $7.15
B
Space Available: 108000 SF
Lease Type: NNN
Price Per Sqft/Year: $7.15

