1632 & 1636 Walton Way and 1623 & 1637 Cleveland Street
1632 Walton Way
Augusta, GA 30904
Highlights
- Level & Ready for Development
- Zoned B-2
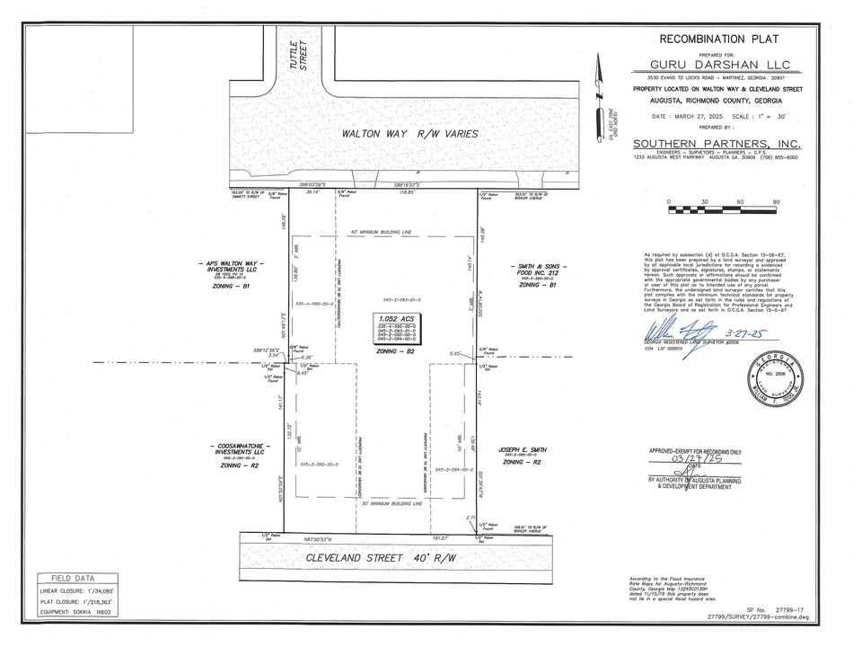
- Dimensions: 199' on Walton Way X 267' deep
- 18,500 VPD
Description
Meybohm Commercial Properties is pleased to exclusively represent this 1.02 acre lot zoned B-2 (conditional) per Richmond county, located on Walton Way along the busy central business corridor. Traffic counts along this section of Walton Way are 18,500 vehicles per day. The area consists of a mix of national retailers, restaurants, medical, professional, office, Richmond County Resources as well as various residential uses. Minutes from the Downtown Medical District which includes The Charlie Norton VA Medical Center, WellStar MCG Health, and Piedmont Augusta. Owner purchased/assembled for hotel development. The site is level and all structures have been removed. Many possibilities on this site with dimensions of 199' on Walton Way X 267' deep.
Situated in the heart of Augusta's vibrant Midtown market, the location offers a prime investment opportunity for Land/Retail investors. Surrounded by a mix of residential, commercial, and cultural developments, the area boasts a thriving and diverse community. Nearby, renowned landmarks such as the historic Augusta National Golf Club, The Augusta Museum of History, and the Augusta University Medical Center contribute to the area's allure and draws visitors year-round. The site is only 4.5 miles south of Interstate-20. 8.3 miles from the Augusta Regional Airport. 1.5 miles from North Augusta via the 13th Street bridge.
Documents
Sales Brochure 1.02 acre Walton Way1632 Walton Way Rezoning Conditions, Z-20-49.pdf
Plat Approved 3-27-2025.pdf

