2 Commercial Sites | Office/Retail
100 Timber Trail
Richmond Hill, GA 31324
Highlights
Description
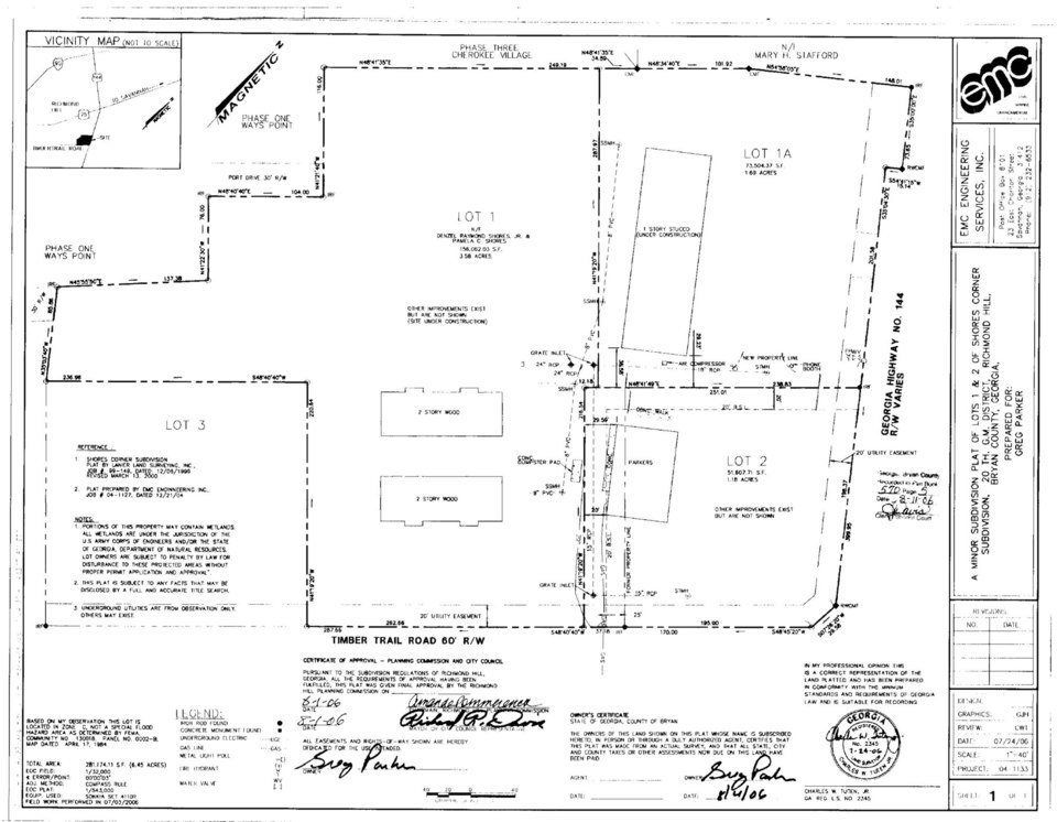
The Finem Group at Meybohm Commercial is pleased to exclusively present ±3.19 acres at 100 Timber Trail Road for sale. This offering includes two shovel-ready parcels adjacent to Parker’s Kitchen in Richmond Hill, GA.
Pad A (±1.64 acres), zoned R-3 Moderate Density Residential, is positioned behind a multi-tenant retail strip and office building, offering 2x RIRO access points on Ford Avenue and 2x full-motion access points on Timber Trail.
Pad B (±1.55 acres), also zoned R-3 Moderate Density Residential, features frontage and full access on Timber Trail. Both sites are utility-served, level, and development-ready, offering flexibility for a range of commercial, office, or specialty residential uses in a high-traffic corridor with a combined 31,553 vehicles per day.
The Finem Group at Meybohm Commercial is pleased to exclusively present ±3.19 acres at 100 Timber Trail Road for sale. This offering includes two shovel-ready parcels adjacent to Parker’s Kitchen in Richmond Hill, GA.
Pad A (±1.64 acres), zoned R-3 Moderate Density Residential, is positioned behind a multi-tenant retail strip and office building, offering 2x RIRO access points on Ford Avenue and 2x full-motion access points on Timber Trail.
Pad B (±1.55 acres), also zoned R-3 Moderate Density Residential, features frontage and full access on Timber Trail. Both sites are utility-served, level, and development-ready, offering flexibility for a range of commercial, office, or specialty residential uses in a high-traffic corridor with a combined 31,553 vehicles per day.
Situated just off GA Hwy 144 (Ford Avenue). There is a total of 25,818 VPD on Ford Avenue and the site is located adjacent to the signalized corner of Ford Ave and Timber Trail. The two pads are located adjacent to a Parker’s Kitchen that has annual visits of 505K people. Richmond Hill is part of the fast-growing Savannah MSA and serves as a regional hub for commuters, medical services, and neighborhood retail.
The property’s location offers strategic visibility and proximity to both local traffic generators and regional arterials.

