2 Retail Pads Available for Lease Pine Ave (US HWY 27) , Ocala, Florida
3256 S Pine Ave
Ocala, FL 34471
FOR LEASE
Property Type:
Big Box RetailAmount:
Please Call Broker for PriceLast Verified:
Jan 24, 2025Daily Email Blast
0 times
Highlights
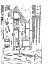
- Located Frontage US HWY 27 ( S Pine Ave)
- 2 Retail Pads with Drive Thrus
- Nearby Residential & Businesses
Description
SVN is presenting 2 retail pads improved with main curb access in place , along with future cross access to south parcel which will possible be Storage & outparcel development in future. The 2 retail pads available can support 2 Drive Thru Concepts one being a small with 900 SF & 2nd Pad will possible Support 1750 SF w Drive Thrus.
Located North East of Intersection of SW 32nd Street & Hwy 27 (aka Pine Ave)
Year Built: 2012
Building Size: 18200sq ft
Lot Size: 2.3 acres
Documents
2 Pads For Lease, Ocala, Fl BrochureUnits for Lease
Pad A
Space Available: 1750 SF
Lease Type:
Pad B
Space Available: 900 SF
Lease Type:

