±20 Acres of Vacant Residential Land in Selma, CA
9885 S McCall Ave
Selma, CA 93662
Highlights
- ±20 Acres (±871,200 SF) of Vacant Land in Selma, CA
- Complete Building Plans & Recorded Maps
- High Identity Location | Shovel Ready | Square Parcel
- Annexation Process Almost Complete | Zoned Residential
- Convenient and Close Highway Access
- Situated Near Existing Newer Housing Developments
- Near Major Corridors servicing College, Airport, Downtown, & Schools
- Regional Retail Developments Just Minutes Away
- Located Between Elementary, Middle, & High Schools
- Easy Access & Multiple Entrances/Exits
- Strong Number of Households | ±40,860 Within 5-Mile Radius
- Growth Area of Selma- New Schools/Residential Projects Recently Built/Planned
- Convenient Access to US Freeway 99 & Golden State Hwy
Description
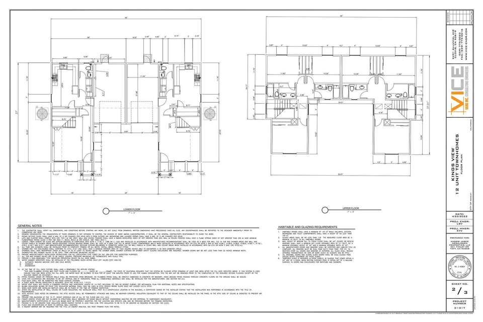
Prime residential shovel-ready parcel located off of McCall Ave & Dinuba Ave in Selma, California. Complete building plans total ±20 Acres ( ±871,200 SF). The property is level, and is shovel ready with fully completed plans & maps. All utilities are located at the site on McCall and Dinuba Avenue. This parcel has excellent access, roads have adequate capacity, is within the holding capacity, conforms to policies, avoids traffic congestion, and is shovel ready. The planned complex features 3bed/2.5bath townhomes/duplex's with washer/dryer hookups, private patio & an attached garage. Phase 1 lot size: ±6,944 SF - ±7,593 SF with an average of ±6,993 SF. Phase 1 area: 6.4AC on 40 lots & 12.5 DU/AC. Overall density: 160 DU/ 14.9 AC = 10.7 DU/AC. City of Selma recently started the Amberwood Sanitary Sewer Improvement Project (Res. 2024-41R), providing 2 new lift stations for the sewer for 2,558 residential units and 131,200 SF of commercial, with the new main lines running along Amber Ave; 15” sewer line tees in at Rose Ave, ending at the adjacent new development.
Phase 1: 70 Units ; Phase 2: 30 Units ; Phase 3: 30 Units ; Phase 4: 30 Units ; Total: 160 Units
Entitlements, Special Studies, & Reports: $100,000 (Paid)
Entitlement Status: Submitted/In Progress
This property is located north of E Dinuba Avenue, east of S Thompson Avenue, south of Manning Avenue and west of McCall Avenue in Selma, California. Located directly next to the site is The Selma Plaza Shopping Center which is the only retail shopping center serving northeast Selma residents for approximately 2 miles. Located in the "Raisin Capitol of the World", Selma, California offers an abundance of homes, apartments, churches, schools, shopping centers, & many more! Nearby national tenants include
Selma’s General Plan update indicates Dinuba and McCall will become a major signalized intersection and medium density residential expansion is planned to occur along the north side of the shopping center. Selma is at the crossroads of SR99 and SR43, making it a regional hub for southeast Fresno County as well as neighboring Tulare and Kings Counties.
Documents
9885 S McCall Ave, Selma, CA 93662 FlyerImpact Fees.pdf
City Council Meeting.pdf
Amberwood Specific Plan Sanitary Sewer Improvement Project.pdf
21-017 Elevations.dwg PHASE 2-SHEET 2.pdf
23-005 PROJECT LIMITS-SHEET 1.pdf
21-017 Floor Plan .dwg PHASE 2-SHEET 1.pdf
23-005 TENTATIVE TRACT MAP 6464.pdf
Floor Plans and Elevations Architect plans.pdf
PRELIM-LINKED-LIVELOOK.pdf
renderings.pdf

