2024 Ruhl Drive
2024 Ruhl Dr
Guthrie, OK 73044
FOR LEASE
Property Type:
WarehouseAmount:
Please Call Broker for PriceLast Verified:
Jan 14, 2026Daily Email Blast
0 times
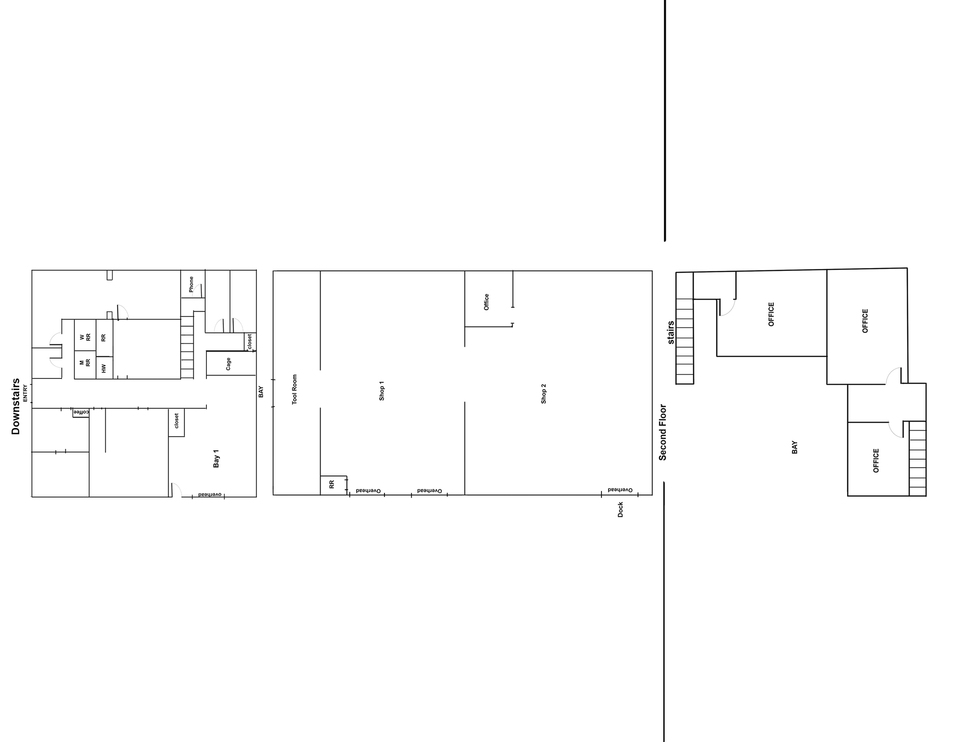
Highlights
- Large Fenced Yard
- 3 Bay Doors
- 1 Dock Door
- 13 Offices
- Conference Room
- Access Controls
- Security Cameras
Description
Industrial Shop Building
Industrial Shop Building near the Guthrie Airport
Year Built: 1982
Building Size: 9025sq ft
Building Class: C
Lot Size: 1.0 acres
Units for Lease
2004 Ruhl Drive
Space Available: 9025 SF
Lease Type: Modified Gross
Price Per Sqft/Year: $9.98

