301 W Main St, Norman, OK, 73069
301 W Main St
Norman, OK 73069
FOR LEASE
Property Type:
Street RetailAmount:
Please Call Broker for PriceLast Verified:
Jan 27, 2026Daily Email Blast
0 times
Description
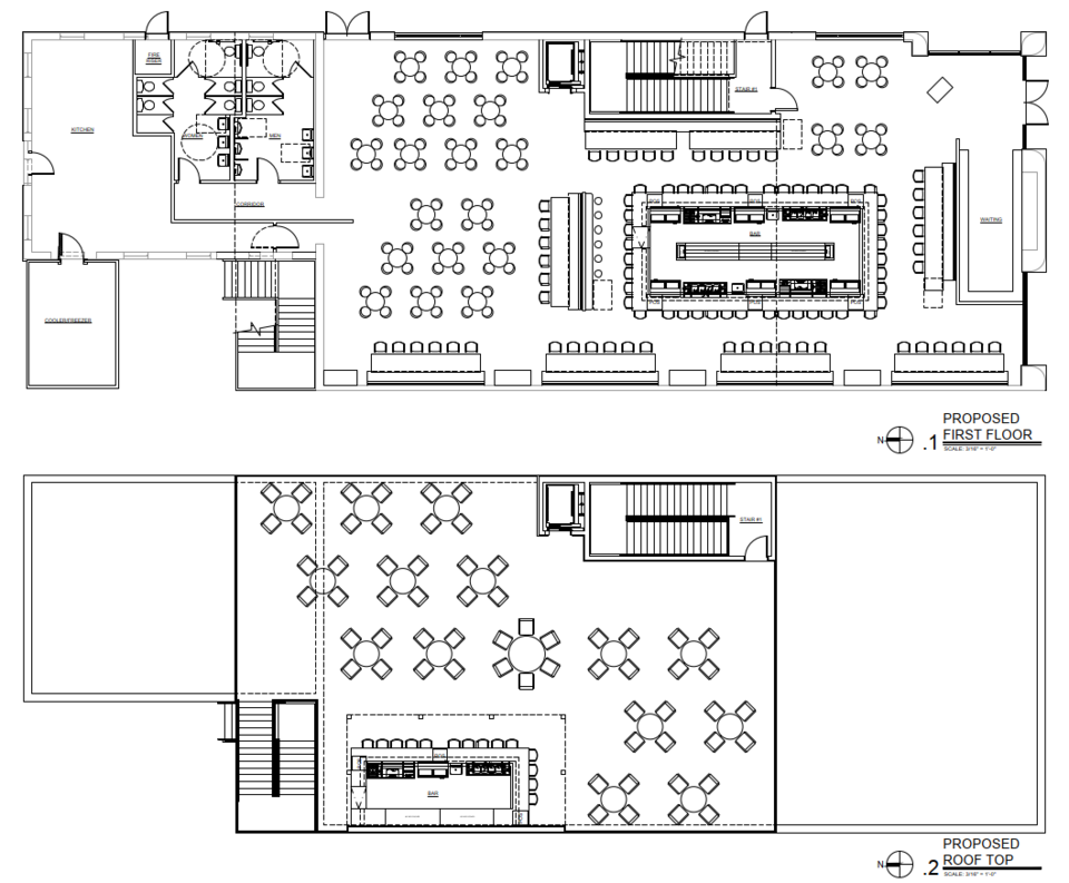
Building Renovation Planned - Rendering Featured Above (interior walls taken down to the studs)
Located in Historic Downtown Norman on the Corner of W Main Street & Webster Avenue
Surrounding Businesses Include: Republic Bank, U.S. Post Office, Benvenuti's, Scratch Kitchen & Cocktails, and more.
New Roof Installed (2020) with a 20-year Warranty - Potential for a Rooftop Bar
Ample Street Parking on W Main St, Side Streets, & Northwest of Property
Judy J. Hatfield, Broker / Owner
Corner of West Main Street and Webster Avenue; close to banks, restaurants, retail, library and post office.
Year Built: 1940
Building Size: 6309sq ft
Lot Size: 0.16 acres
Documents
Lease Brochure (L)Units for Lease
301 W Main St
Space Available: 6309 SF
Lease Type: NNN
Price Per Sqft/Year: $14.75

