332 South Plainview Street, Billings, MT, 59101
332 South Plainview Street
Billings, MT 59101
FOR LEASE
Property Type:
WarehouseAmount:
Please Call Broker for PriceLast Verified:
Jan 09, 2026Daily Email Blast
0 times
Highlights
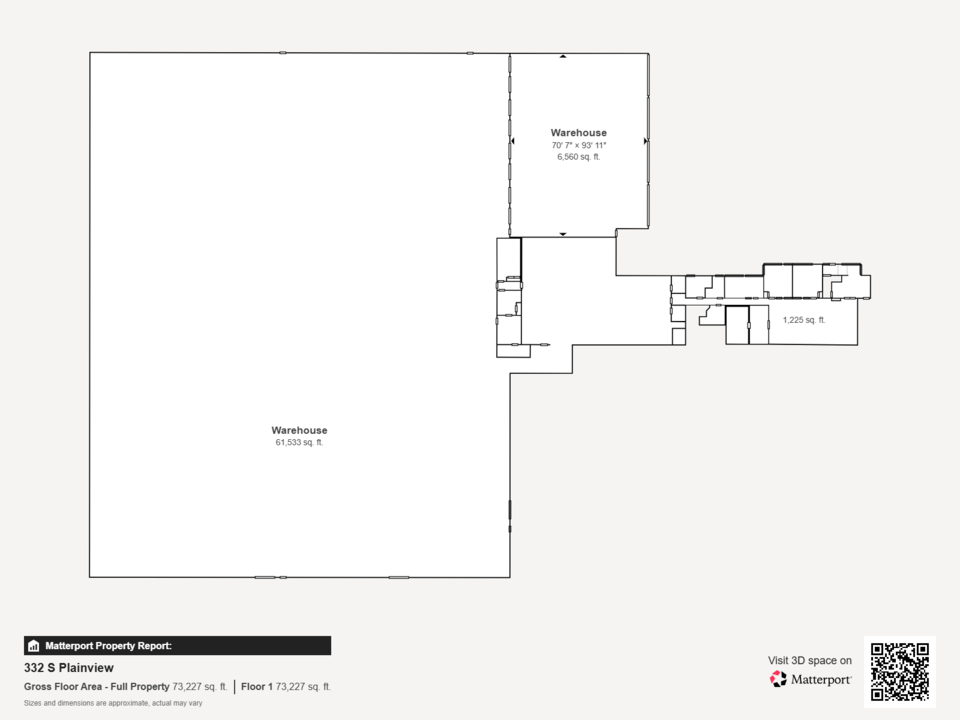
- Space is 66,113 SF of Office/Warehouse
- Rent $8 per SF/yr ($44,075 per month) NNN
- Warehouse APX 64,613
- Covered Loading docks
- 8 dock doors
- Office APX 1,500 SF of office and breakroom
- Storage Room
- Warehouse manager office
- 4 bathrooms
- 8 covered loading docks
- 3-phase power
- Highly efficient motion activated lighting
- Ample customer and employee parking
- 24' ceiling height
Description
Discover the ideal commercial space at 332 South Plainview Street, Billings. This expansive property features 66,113 SF of versatile office/warehouse space. The approximately 64,613 SF warehouse area is enhanced by covered loading docks and 8 convenient dock doors, while the 1,500 SF dedicated office space includes a breakout area, storage room, warehouse manager's office, and 4 bathrooms. With its flexible layout and strategic amenities, this property offers an exceptional opportunity for businesses seeking a dynamic, functional space.
Convenient midtown location with good access to both I-90 and State Highways.
Building Size: 176653sq ft
Lot Size: 7.48 acres
Documents
Alt Lease BrochureUnits for Lease
332 S Plainview St
Space Available: 66113 SF
Lease Type: NNN
Price Per Sqft/Year: $8.00

