47,588 SF Office/Flex Facility for Lease
1059 E Tri County Blvd
Oliver Springs, TN 37840
FOR LEASE
Property Type:
Single Tenant OfficeAmount:
Please Call Broker for PriceLast Verified:
Feb 23, 2026Daily Email Blast
0 times
Description
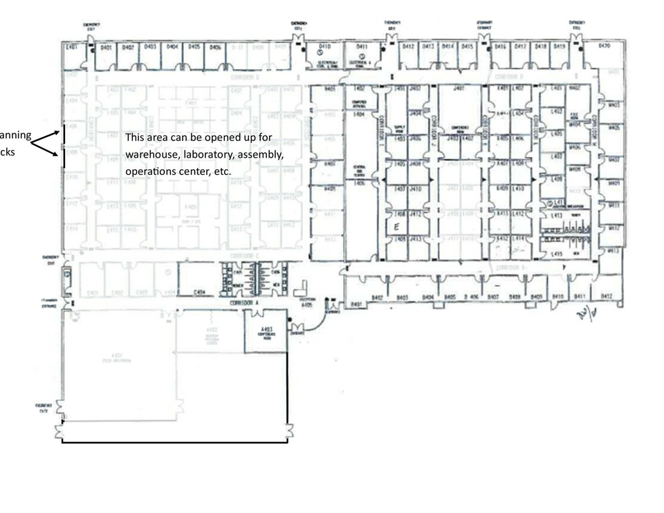
Fully climate controlled flex space. Current configuration is primarily office, but can be opened up for large areas of storage/warehouse.
Tri County Blvd adjoining to Beech Park Baptist Church retail strip center and car wash
Year Built: 1978
Building Size: 47588sq ft
Building Class: B
Lot Size: 3.78 acres
Documents
Brochure 1059 E Tri CountyUnits for Lease
Unit
Space Available: 47588 SF
Lease Type: Modified Gross
Price Per Sqft/Year: $13.25

