929 Walnut St, Kansas City, MO, 64106
929 Walnut St
Kansas City, MO 64106
Highlights
- Historic 1922 office-to-residential conversion currently under construction
- Delivery: Q2 2026 (earlier occupancy may be possible for certain spaces)
- 49 luxury residential loft units
- One block from Power & Light District and the free KC Streetcar
- WalkScore 96 – “Walker’s Paradise”
- Directly next door to the very successful 909 Walnut residential conversion
- Ground-floor anchor committed: Remedy Cafe (local coffee bar concept)
- Green rooftop terrace with grilling area
- On-site gym
- Secure parking garage
- Secure package room + grocery delivery
Description
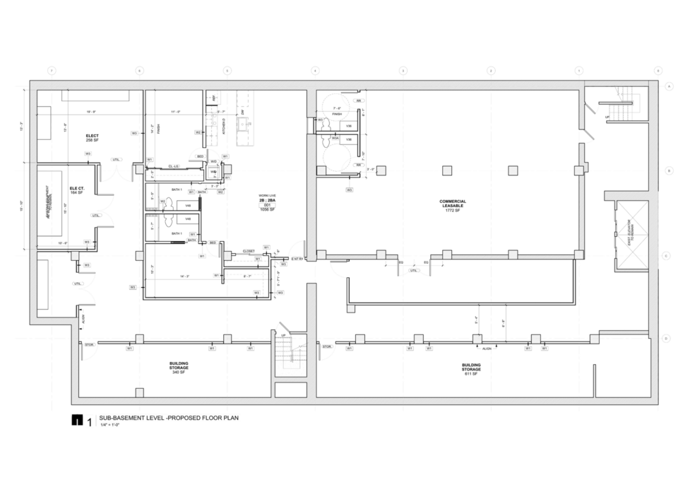
929 Walnut Street offers a unique commercial space across three levels within a historic 1922 office-to-residential conversion currently under construction. The project will deliver 49 luxury residential loft units above, creating built-in foot traffic and demand for street-level and experiential users. These spaces are available in shell condition, allowing tenants to tailor layouts and finishes to their concept.
Ownership is seeking a tenant that complements the existing on-site bar / cafe and enhances the elevated lifestyle environment being created for future residents. Ideal uses include wellness and personal care concepts, boutique retail or fast-casual offerings, or low-occupancy professional office users.
929 Walnut offers tenants the rare combination of historic character, modern redevelopment, built-in residential demand and premier downtown connectivity. The property’s placement along Walnut Street positions it within one of Kansas City’s most walkable and active downtown corridors. This makes an opportunity for brands seeking visibility, foot traffic and long-term growth in the urban core.
Documents
929 Walnut Brochure 1.26.26Units for Lease
Price Per Sqft/Year: $15.00 - $19.00
Price Per Sqft/Year: $14.00 - $18.00
Price Per Sqft/Year: $14.00 - $18.00

