Bare Land 1-3 Acres - Development Opportunity
2282 Claxter Rd NE
Salem, OR 97301
Highlights
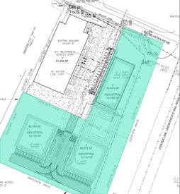
- 3 - Entitled Industrial Lots
- Enterprise Zone
- E-Commerce Zone
- Industrial General Zoning
- Site Development Plan submitted 2026
- Improvement Plans are fully approved and permits are already pulled
- Close proximity to I-5 via Salem Parkway & 99E
Description
3 entitled industrial lots ready to be built! Rare opportunity to develop in Salem's NE industrial area. This property sits in Enterprise and E-Commerce incentive zoning. Improvement plans can change for the right terms. The existing building and improvements are not included in the sale. Owner will consider build-to-suit with a term lease. Ideal for warehousing, secondary processing & packaging and fabrication of goods and equipment with related outdoor storage and incidental sales. Close proximity to I-5 via Salem Parkway & 99E. suit with a term lease. IG zone generally allows for a wide range of manufacturing, distribution, and storage uses. Close proximity to I-5 via Salem Parkway & 99E. Contact Listing Broker for additional information.
Located in Salem's NE Industrial area with close proximity to the I-5, Parkway and 99E.

