COMING SOON – 2567 Huntcliff Lane | Freestanding Medical Office for Lease
2567 Huntcliff Lane
Panama City, FL 32405
Highlights
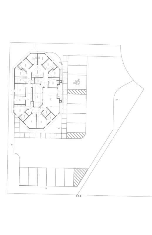
- 2,921 +/- SF Medical Office
- Turnkey Medical-Ready
- Seven (7) Exam Rooms with/ Sinks
- Multiple Offices
- Professional Business Setting
- Floor Plan & 3D Tour Available
Description
2567 Huntcliff Lane is a professionally planned, ±2,921.5 SF freestanding medical office building undergoing a full renovation and refreshed landscaping to deliver a move-in-ready clinical space. The efficient single-story layout features seven exam rooms—all equipped with hand-washing sinks—multiple private offices, a central nurse station, a welcoming reception area, and a kitchenette/breakroom. NNN Operating Expenses (OpEx) estimated at $6.63/ SF (2026)
Ideal for primary care, outpatient specialties, or wellness practices, the building includes an intuitive floor plan (provided) and a full 3D virtual tour for remote viewings. Situated just north of the 23rd Street and Jenks Avenue intersection, this location offers excellent access, ample surface parking, and proximity to both HCA Florida Gulf Coast Hospital and a strong cluster of healthcare providers and professional offices.
Positioned in the heart of Panama City’s professional corridor, the property is just minutes from HCA Gulf Coast Regional Medical Center and Ascension Sacred Heart. With proximity to major arterials like Jenks Avenue and West 23rd Street, the site offers excellent visibility, convenient access, and a strong local demographic of healthcare providers, families, and professionals.
Documents
Brochure (L)2567 Huntcliff Lane - Sheet - ARCH-01 - FIRST FLOOR PLAN.pdf
Boundary_Survey_2567_Huntcliff_Lane_Medical_Office_Building.pdf
boundary survey w parking spots and lights.pdf
Units for Lease
Price Per Sqft/Year: $25.00

