Commercial/Office for Sale in Downtown Saline
201 S Ann Arbor St
Saline, MI 48176
Highlights
- 6,600 SF commercial building
- Zoned D-2 allowing a variety of commercial uses
- Located in downtown Saline, one block off Michigan Avenue
- Corner lot with excellent street presence and visibility
- Walking distance to restaurants, shops, and services
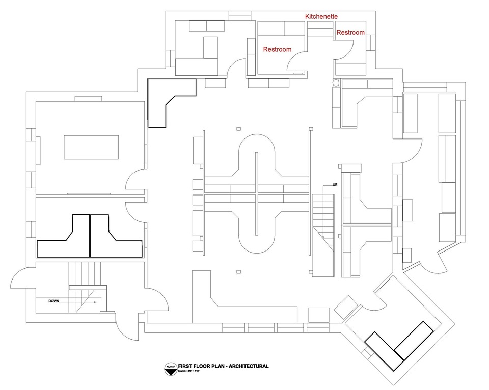
- Multiple individual offices throughout
- Large conference/training room
- Kitchenettes on both main and lower levels
- 16 on-site parking spaces with one designated handicap space
- Additional street and city lot parking nearby
- Handicap accessible
- All-brick exterior for low maintenance
- Updated mechanical systems
- Abundant natural light throughout
Description
Exceptional 6,600 SF commercial building located in the heart of downtown Saline. Zoned D-2, this property allows for a variety of commercial uses, including office, daycare, medical office or restaurant. Positioned on a corner lot just one block off Michigan Avenue, the building offers outstanding visibility and convenient access to nearby restaurants, shops, and community amenities.
This well-maintained, all-brick building reflects pride of ownership with updated mechanical systems, handicap accessibility, and an attractive, low-maintenance exterior. Inside, the space features multiple individual offices, a large conference/training room, kitchenettes on both the lower and main levels, and abundant natural light throughout.
The property includes 16 on-site parking spaces (plus one handicap space) with additional nearby municipal street and lot parking available. Ideal for a business seeking a central location with high exposure and walkability.
Located in downtown Saline on the corner of S Ann Arbor and E Henry Streets, directly across from the popular Salt Springs Brewery Restaurant. One block east of Michigan Avenue and walking distance to many fine restaurants and shopping in the heart of Saline's event/activity venues.
Documents
Sale Brochure - 201 S Ann Arbor Saline (P)IMEG Floor Plan Lower Level.jpg
IMEG Floor Plan - First level.jpg
IMEG Floor Plan - Second level.jpg

