Downtown Columbus Retail Investment
147 N High Street
Columbus, OH 43215
Highlights
- Commercial Condo Unit at the Brunson Building
- Ground Floor Downtown Investment Opportunity
- Income Producing with $3,193 in Rent Per Month Net Lease
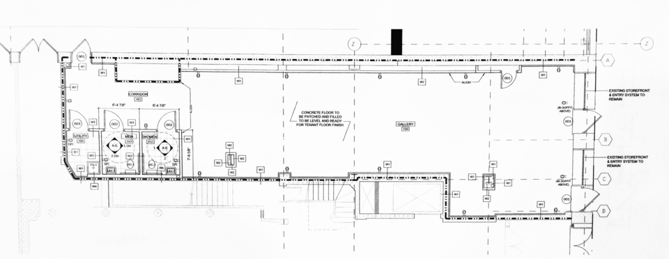
- First Floor 1,595 SF Storefront Retail in Downtown Columbus
- Currently Leased to a Gallery within Edwards new 'Art Hub'
- Tenant pays Operating Expenses and condo fees of $6.90 PSF
- Creative and Open Space with Privacy in Back
- Rear Access to Parking Space in Garage
- Two ADA Restrooms
Description
Downtown Columbus Retail Space available for Sale or Lease. Opportunity to be part of the Brunson Building association with this ground floor 1,594 SF commercial condo. This space has tall ceilings and expansive glass windows, offering an open-concept, creative atmosphere. The rear of the space has a private area and direct access to the parking garage. Added convenience comes from two ADA-compliant restrooms and great signage opportunities. The rear access to garage parking, along with the high traffic volume of ±16,927 vehicles per day along North High Street, makes this commercial condo an ideal choice for businesses seeking a vibrant and accessible location.
The property is located in the heart of downtown Columbus. Near the intersection of N High Street and E Long Street and walking distance to the Arena District and the Short North. Ground Floor retail of the fully renovated Brunson Building.

