Downtown Mixed Use Investment Property
109 South Kent St.
Winchester, VA 22601
Highlights
- Location is close to Downtown Walking Mall and Government and Judicial Center
- Secure private entrance stairway to the second-floor space
- Parking available alongside and rear of the property
- Sale price of $249,900, NOI of $21,178, Cap rate of 8.5
Description
Price has been reduced to $249,900! Location is two blocks off the Winchester Downtown Walking Mall and one block from the Government and Judicial Center.
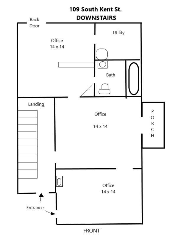
Currently the two story mixed use building is being leased to one tenant for commercial use. The B1 zoning allows residential over commercial as a by right use. Current Tenant has a lease through June 2026. We feel the highest and best use for this property is Residential on both floors, which requires a Conditional Use Permit. Full bathrooms on each floor make this a candidate for a quick "fix and flip" project. Purchase the property while it is being leased and plan your renovations and apply for Conditional Use Permit. This location is much better suited for multifamily residential. Let an SVN Advisor help guide you through the process and maximize the potential of this "bite sized" investment!
TBD

