Established Brewery & Café Business for Sale in Dexter
8080 Grand St, Suite 3
Dexter, MI 48130
Highlights
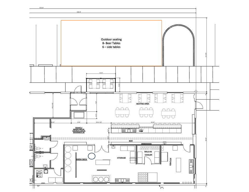
- Tap Room capacity – seats up to 80 guests with current seating of 56 guests with custom bar, custom furnishings, and ambient lighting
- 3-Season Patio
- Brewing Equipment
- Coffee Program
- Revenue Streams – taproom beer and coffee sales, wholesale distribution, events, and merchandise
- Growth Potential – expand distribution, online sales, events, and food offerings
- Licenses & Permits Included
- Assets – brewing and coffee equipment, furnishings, inventory, recipes, branding, and digital assets
- Lease Term – through January 14, 2029 at market rate with f ive year option
- Training & Transition Support – available from seller to ensure smooth hand-off
Description
Property & Facility Highlights:
Location: Prime suburban setting with steady foot traffic, high visibility, and proximity to complementary retail and dining establishments. Flexible food options with food permit. Food trucks also permitted. Located directly next door to the Raterman Bread Haus & Bistro makes for a great neighbor collaborative of brewery/coffee & bakery/bistro.
Taproom: Inviting and well-designed interior with capacity for up to 80 guests, featuring a custom bar, custom furnishings, and warm ambient lighting.
3-Season Patio: Landscaped outdoor seating area ideal for events, live music, and community gatherings.
Brewing Equipment: 3.5-barrel brewing system with stainless-steel fermentation tanks and glycol chilling system; scalable for increased production.
Coffee Equipment: Victoria Arduino 2-group espresso machine, grinders, batch brew, and RO system for premium beverage service.
Licenses: All active brewing, food service, and sales licenses are current, ensuring an efficient ownership transition.
Lease: Secure lease through January 14, 2029 at market rate with five year option.
Products & Operations
Erratic Ale Co. produces a diverse range of craft beverages — from American and Belgian-style ales to rich stouts and crisp lagers — complemented by a full-service coffee bar. With more than 30 refined recipes, this operation has successfully built a reputation for both quality and innovation. Detailed financials, inventory lists, and production data are available for qualified buyers upon request and with executed Non-disclosure Agreement
Included in Sale:- Complete 3.5-barrel brewing system & seven fermenters
- Espresso and coffee brewing equipment
- Fully furnished taproom and patio
- Raw materials, finished product inventory, & branded merchandise
- Intellectual property: name, recipes, logos, digital assets
- Optional seller training and transition support, including introductions to suppliers and distributors
Nestled in a vibrant locale that enjoys a prime suburban setting, easily accessible and surrounded by complementary businesses including restaurants, markets, and a beautiful active trail system for runners, walkers, and cyclists.

