The Gannett Building
55 Exchange Blvd
Rochester, NY 14614
Highlights
- Ample Parking
- On the Corner of Exchange Blvd and Broad Street
- Close Proximity to Downtown Rochester and the Greater Rochester International Airport
Description
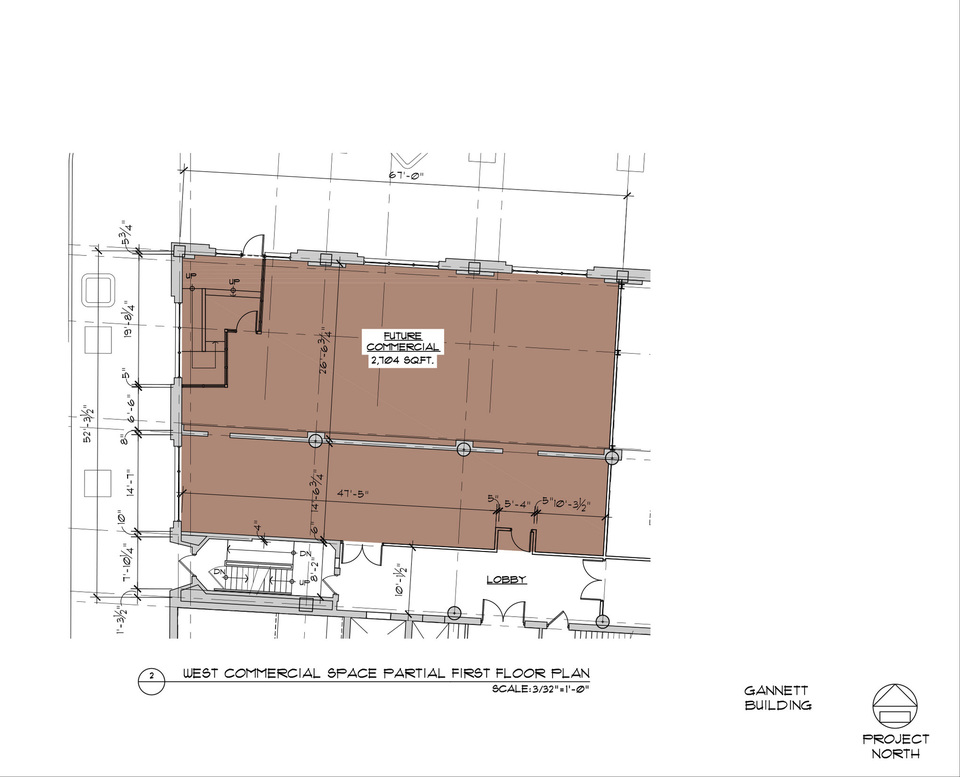
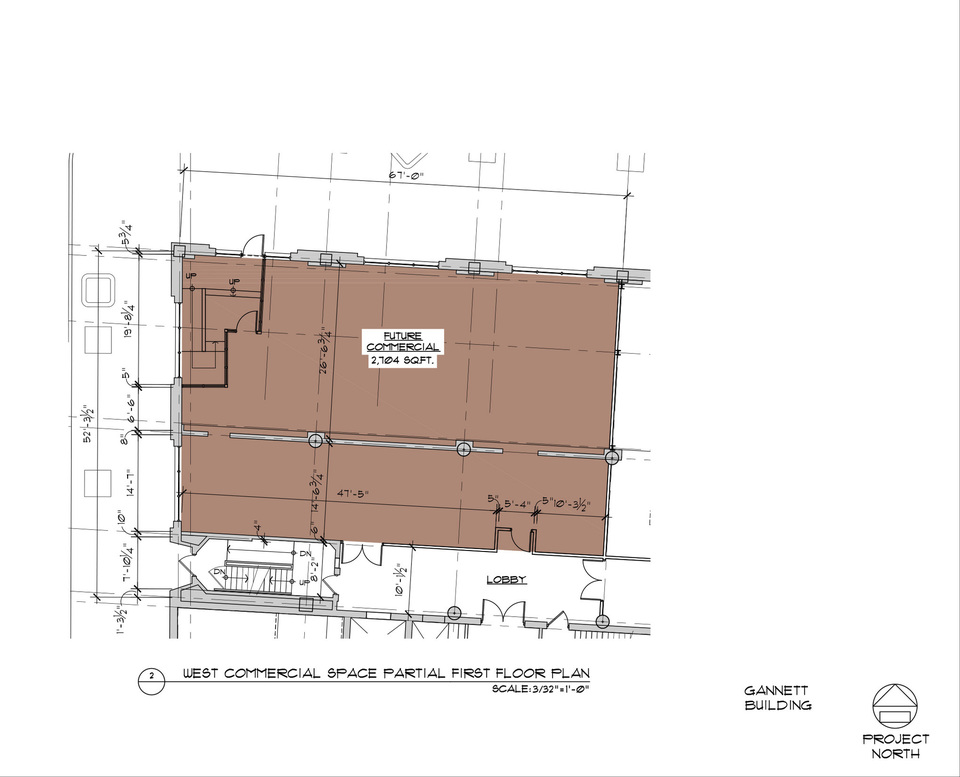
The Gannett Building boasts a commanding presence, sitting five stories high on the corner of Broad and Exchange in Downtown Rochester. This is the perfect opportunity for a restaurant/bar space or a retail/office type use with street exposure on the 1st Floor on the corner of Broad and Exchange. Project is being developed with the ability to customize space needs on all floors. With large windows and timeless Classical Revival style the Gannett Building offers unique visibility in the Downtown market.
The available retail/office spaces are located in the Gannett Building in downtown Rochester, NY. The building is located across the street from the Blue Cross Arena, a 13,000 seat multi-purpose arena that hosts hockey, lacrosse, and basketball sporting events, as well as numerous concerts throughout the year. Other generators in the area include the Monroe County Hall of Justice, Monroe County Civic Center, Rochester Police Department Headquarters, the Riverside Convention Center with 100,000 SF adaptable meeting and exhibit space, and numerous office and mixed-used buildings. Constellation Brands, a Fortune 500 company is relocating their headquarters to the Aqueduct Building, which is located kitty-corner to the Gannett Building.

