Lutheran Health Plaza
1302 Minnich Road
New Haven, IN 46774
FOR LEASE
Property Type:
Neighborhood CenterAmount:
Please Call Broker for PriceLast Verified:
Oct 01, 2025Daily Email Blast
0 times
Highlights
- Major tenants include: Lutheran Health Network, Hoosier Park, Dollar General & Fresenius Medical Care
- Recently Renovated Center
- Excellent location and visibility
- Hard corner with undeveloped outlots
- Ample parking
- Well known neighborhood center
Description
Located at the US30 exit of I-469 with very easy access to highways and community. Well known neighborhood shopping center with 3 outlots available for sale.
This location is ideal for retailers requiring visibility and excess parking. This center has historically been a well-known anchor to the entire community with adjacent new development including office, retail, hospitality, multi-family, single family and the recent Lutheran Health Network expansion.
Year Built: 1977
Building Size: 79422sq ft
Building Class: B
Lot Size: 9.67 acres
Documents
SVN - Brochure (L)Units for Lease
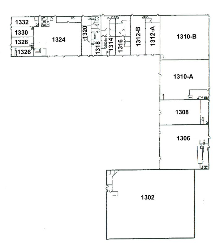
1312A
Space Available: 2374 SF
Lease Type: NNN
Price Per Sqft/Year: $15.00
1310B
Space Available: 9000 SF
Lease Type: NNN
Price Per Sqft/Year: $15.00

