Main Street Enterprise - 4,328 SF Building For Sale
218 S Main St
Enterprise, AL 36330
Highlights
- Included in the Sale:
- Real estate (0.23-acre lot with 4,328 sq. ft. existing building)
- Architectural plans and development drawings
- City-approved permits and agreements, including:
- Tax incentives
- Easement drafts for 2-way street and underground infrastructure (water, sewer, power lines funded by the city)
- Surveys, environmental assessments, and civil engineering work
- Proposed redevelopment footprint offers 7 off-street parking spaces
- A fully operational website for marketing the future development: https://www.218loftsonmain.com/ (optional)
- Business entity: 218 South Main Street, LLC (optional)
Description
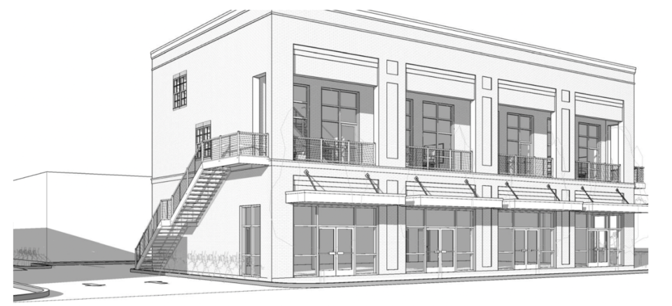
This 4,328 sq. ft. building is located on Main Street in Enterprise, AL. The existing structure is a mix of retail/office space and warehouse in the rear. The property is prepped for a mixed-use redevelopment, with plans for retail on the ground floor and luxury lofts on the 2nd floor. The sale includes a pre-development package with development assets and significant groundwork already completed. The included plans propose an 8,930 sq. ft. mixed-use building, featuring 3,750 sq. ft. of retail space on the ground floor and 5,180 sq. ft. of luxury loft apartments above. Alternatively, buyers have the flexibility to revise plans or utilize the existing structure for an alternate project. This proposed development is a great opportunity for buyers looking to step into a project with significant pre-development progress already achieved, reducing the timeline and effort to bring the vision to life. The city’s support and infrastructure investments further enhance the value of this site.
218 S. Main Street, Enterprise, AL 36330
Documents
218 S. Main, Enterprise Sale FlyerSale Flyer 218 S. Main, Enterprise

