Mixed Use Development Site
505 Delaware
Buffalo, NY 14202
Highlights
Description
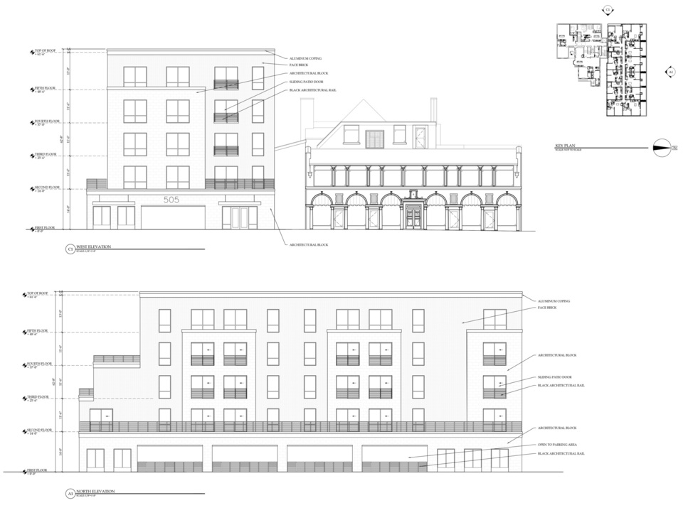
505 Delaware ave is currently a 3-story 15,704 SF office property with 34 car parks. In addition to the sale of 505 Delaware, the sale includes an approved development project for 515 Delaware ave which is a 5-story 9,758 GSF mixed- use building consisting of 40 market rate apartments.
1,700-9,000 SF of commercial office space or medical office space in a well-maintained building. The building's close proximity to the Buffalo General Medical Center and other medical organizations make this space ideal for a tenant operating in the health care/medical industries. The ground-level space is currently built out as medical office space and offers bathrooms, a waiting room, reception area, multiple exam rooms, and a doctor's office. This space also comes with off-street parking spaces. The 4,000 SF on the second floor is built out as professional office space. The third-floor office space offers three large, private offices, and a private bathroom. Additionally there is a large open area that is filled with warm, inviting natural light thanks to the massive skylights.
Located on Delaware Ave in the Allentown District, between Allen Street and Virginia Street. This multi-story building is a 5 minute minute walk from the Buffalo General Medical Center and Buffalo's historic Theater District. The surrounding office spaces are home to many lawyers, accountants, and medical practitioners, with several local restaurants as well. National retailers include Tim Hortons, Walgreens, Residence Inn, and Lenox Hotel.
Documents
505_DelawareAve_Lease_Brochure.pdfUnits for Lease
Price Per Sqft/Year: $16.00
Price Per Sqft/Year: $16.00
Price Per Sqft/Year: $16.00

