Mixed-Use / Flex Retail Building
145 Lincoln Avenue
Penndel, PA 19047
Highlights
Description
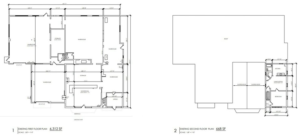
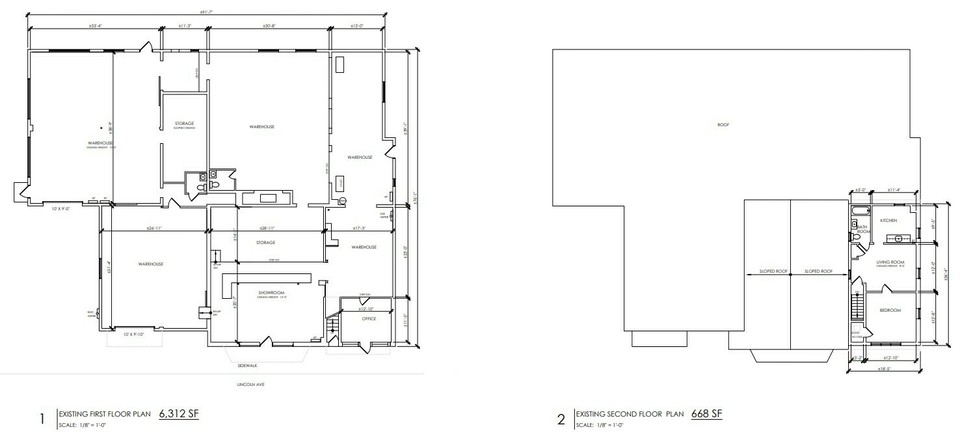
A unique mixed-use opportunity featuring a 6,980 SF free-standing building located in Penndel Borough, Bucks County, PA. This property includes a 6,312 SF first-floor retail space, complete with two overhead doors and durable cinder block wall construction with 11-foot ceilings. Previously utilized as an automotive parts distributor, the building has been well-maintained and boasts a comprehensive list of recent improvements. Its versatile layout and prime location make it an excellent opportunity for owner-users with income from the residential apartment on the second floor. With immediate access to major area highways, this property is ideally positioned for a variety of uses permitted by right under its Retail Commercial zoning district.
A first floor, free-standing retail space offering approximately 6,312 square feet of space, now available for immediate occupancy. This versatile property includes two overhead doors, 11-foot ceilings, open retail space, and functional office areas, all maintained in good condition. Previously utilized as an automotive parts distributor, the space has been well-maintained and boasts a comprehensive list of recent improvements. With immediate access to major area highways, this property is ideally positioned for a variety of uses permitted by right under its Retail Commercial zoning district.
Penndel Borough offers excellent accessibility, with key transportation routes such as U.S. Route 1, the PA Turnpike and I-95 all in close proximity. Centrally located, it connects conveniently to the Philadelphia, New York, South and Central New Jersey. The property is ideally situated just 0.3 miles from U.S. Route 1 Bus and 1.4 miles from U.S. Roue 1. The area boasts numerous amenities, and a dense mix of residential and commercial neighborhoods.
Documents
OM - 145 Lincoln Ave Penndel LeaseOM - 145 Lincoln Ave Penndel Sale
Units for Lease
Price Per Sqft/Year: $12.00

