Office Space Available - Direct Route 3 Access
55 Accord Park Drive
Rockland, MA 02370
FOR LEASE
Property Type:
Multi Tenant OfficeLast Verified:
Dec 02, 2025Daily Email Blast
0 times
Description
Class B Office Building in the rapidly developing Accord Business Park. Set on over an acre of land, directly off Route 3/Exit 14, the building offers great window line, flexible floor plan and professional management. Over 54 parking spaces and walking distance to Restaurants.
Right off of Route 3/228/Pond St
Building Size: 1sq ft
Building Class: B
Lot Size: 0 acres
Documents
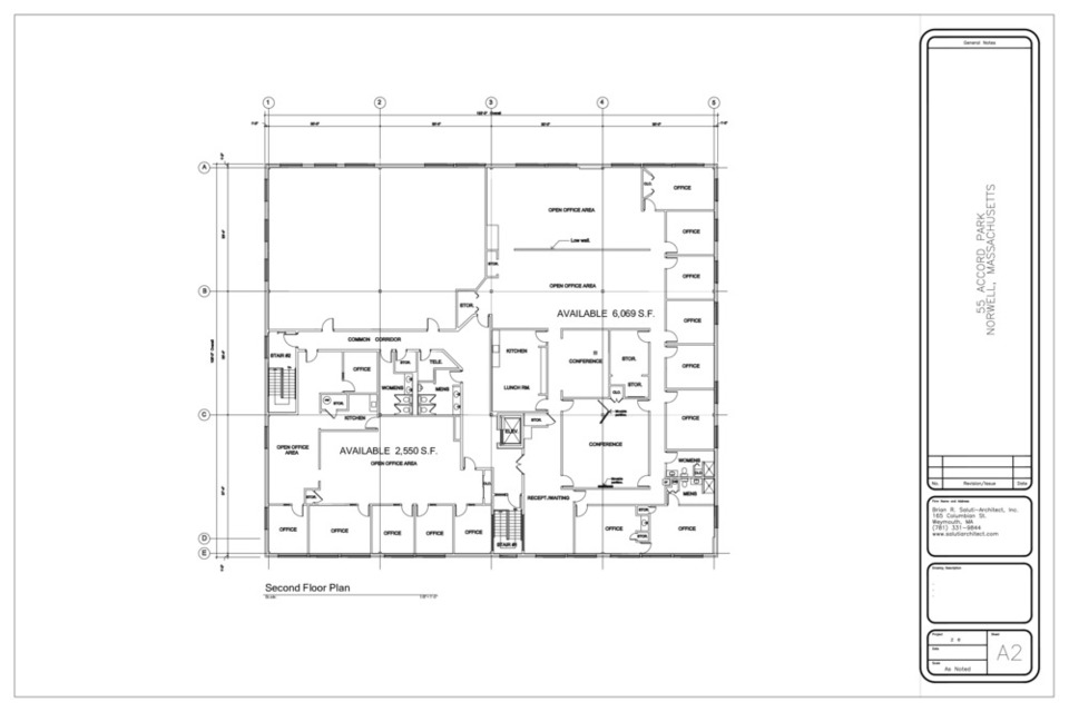
Lease Brochure55 Accord_Second Floor As Built.pdf
55 Accord - 2nd Floor Available Space - 6069 SF.pdf
Units for Lease
Suite 101
Space Available: 3033 SF
Lease Type: Modified Gross
Price Per Sqft/Year: $19.00
Suite 5
Space Available: 6069 SF
Lease Type: Modified Gross
Price Per Sqft/Year: $19.00

