Office Spaces Available in Excellent Condition & Move-In Ready off Mooney
2005 W Ashland Ave
Visalia, CA 93277
Highlights
- (2) Economical Spaces Available - Move-In Ready
- 1 Block off Mooney Blvd, North of Caldwell Ave
- Move-In Ready: Fresh Paint & Carpet
- Well-Known Freestanding Office Building
- Private Office, Open Room/Large Bullpen
- Private Parking Lot + Street Parking
- Convenient Location Between CA-99 and CA-198
- Excellent Mooney Presence Surrounded with Quality Tenants
- Quality Construction | Well Maintained | Move-In Ready
- Busy & Established Corridor w/ Retail Growth
- Easy Access | Separate Suites | Multiple Configurations
- Ample Parking, Quality Tenants, & Great Exposure
- Building Equipped w/ Separate HVAC's & Meters
- Well-Known Freestanding Office Building Off Corner Location
- Close Proximity to Traffic Generators
Description
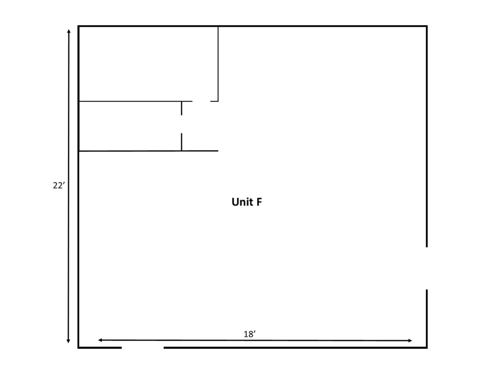
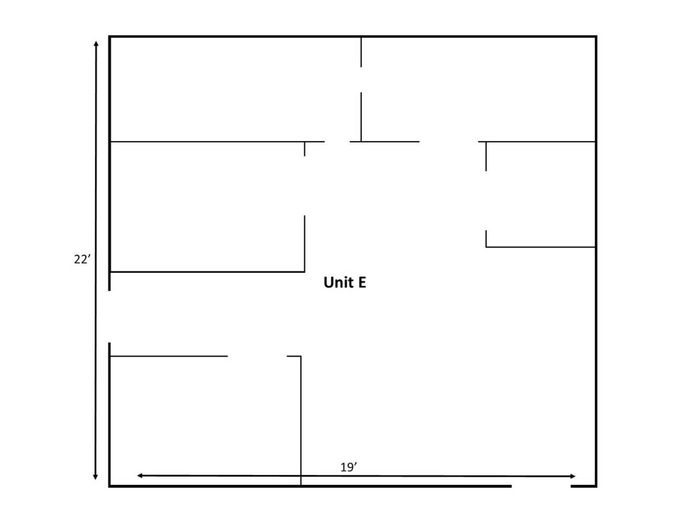
(2) suites available, #A consists of ±1,250 SF & #F consists of ±625 SF. Great potential for either General, Professional, or Medical Office space off Mooney Blvd on Ashland Ave. Clean office spaces with fresh paint, newer flooring, and move-in ready! Each unit has access to high speed Internet, is separately metered, has private restrooms, private entrances, and consists of demising walls (can be combined). Brand new asphalt slurry coat, newer HVAC's, full exterior lit private parking (17 spaces plus street), excellent existing corner signage, great visibility and easy access to CA-198 and CA-99 on/off ramps. Direct Mooney Blvd visibility and access.
Prime location just 2 doors east of Visalia' s main retail corridors, Mooney Boulevard and across from Visalia Mall, which is one of the busiest intersection in Visalia. Positioned at a highly visible, easily accessible, and major recognizable corridor in the heart of Visalia. Easy access from surrounding major corridors. Within 1 mile there is approximately 2 million square feet of retail and office space, making this the regional office and retail destination for residents in Tulare County. Subject is South of CA-198, East of Highway 99, and West of S Court St.
Documents
BrochureSale Brochure
Units for Lease
Price Per Sqft/Month: $1.45
Price Per Sqft/Month: $1.35

