Ormond Beach US-1- 2.06 Acres Office/Retail/ALF/C-Store
1031 N US Highway 1
Ormond Beach, FL 32174
FOR SALE
Property Type:
Commercial Land DevelopmentAmount:
$649,000
Last Verified:
Jun 11, 2025Daily Email Blast
0 times
Highlights
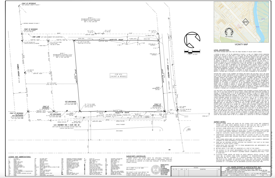
- 2.06 Acres in Ormond Beach - N US Highway 1
- 327 Feet of N US-1 Frontage
- Just South of Intersection with Airport Road
- B-8 Zoning Allows for a Variety of Uses-
- Office, Retail, ALF, Convenience Store
- Corner Property With Left In - Left Out
- New Survey and Topo Available
- Geotechnical Evaluation, Species Report, Stormwater Permit
- All Engineering Available to Start Your Project
- 31,000 Average Daily Traffic Count
Description
x
Just South of the Airport Road intersection on the East side of US1
Lot Size: 2.06 acres
Documents
1031 N US-1 - Flyer1031 N US1_ListedSpecies_Report.pdf
Lift Station Report.pdf
Stormwater Report.pdf
FLR10UW84_CGP_Ack.pdf
FDEP Stormwater Permit.pdf
City Comments - PZ-22-012_01-13-2022_3_17_PM.xlsx
992_Bndry-Topo-Tree (08-11-21)_S&S.pdf
GEOTECHNICAL EVALUATION Report.pdf
2021 Annual Property Tax Bill.pdf
Property Info.pdf
Ormond Beach- (B-8) Commercial .pdf
1031 N US1-Tax Records.pdf
1031 N US1-EP.pdf
Site Plan Drawing.pdf

