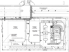
Premium Location - Outparcel 1 Available
2855 Cheney Hwy
Titusville, FL 32780
Highlights
- Zoned CC
- Prime Titusville location
- Next to bustling Culver's
- Less than 1 mile from I-95 interchange
- Pad-ready site
- Four-way traffic signal
- Highway 50 frontage
Description
Presenting an extraordinary opportunity at 2855 Cheney Hwy, Titusville, FL, 32780. This premium outparcel, less than 1 mile from I-95, offers a 1.3+/- pad ready site (0.73 buildable) with a four-way traffic signal. Located in a bustling retail corridor, it is adjacent to the highly successful Culver's and enjoys proximity to renowned brands like Sonny's BBQ, Starbucks, Lowe’s, Home Depot, Target, Walmart, Aldi, Marshall’s, and more. Titusville, FL, home to the renowned Kennedy Space Center, is within an hour's drive to Orlando Theme Parks, Cocoa Beach, Daytona Beach, Port Canaveral, and 3 international airports. This property presents an exceptional opportunity for a discerning land or retail investor.
Discover the allure of Titusville, FL, a dynamic hub of commercial activity and leisure. Home to the iconic Kennedy Space Center, this vibrant area is surrounded by a bustling retail corridor featuring popular destinations such as Sonny's BBQ, Starbucks, Lowe’s, Home Depot, Target, Walmart, Aldi, Marshall’s, and more. Just a short drive away, investors will find themselves within reach of Orlando Theme Parks, Cocoa Beach, Daytona Beach, Port Canaveral, and 3 international airports. This prime location offers a compelling investment opportunity amidst a rich tapestry of commercial potential and recreational allure.

