Prime Lahaska Multi-use Building
5812 Route 202
Lahaska, PA 18938
Highlights
- Mixed-use property
- 4,235 SF ±, total building area
- 0.29 AC ± with parking lot
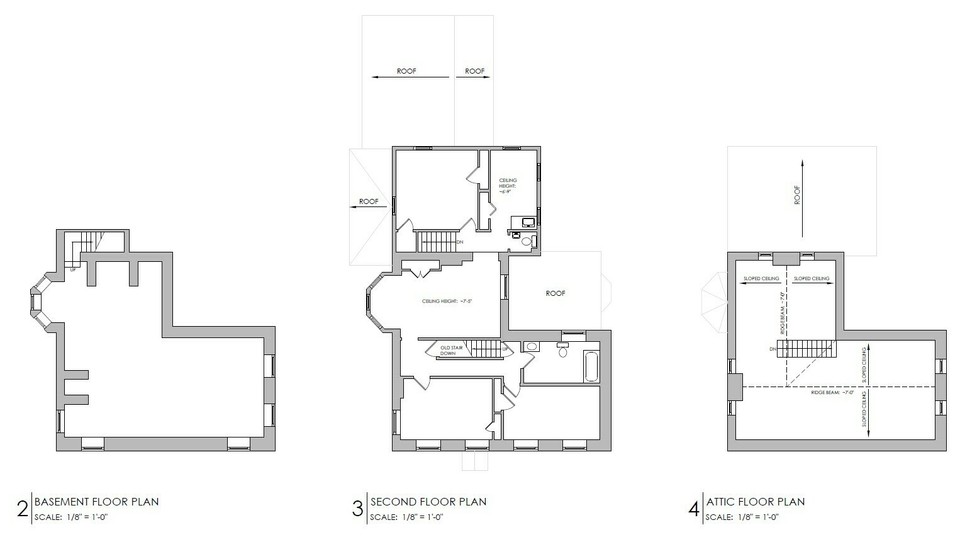
- Building A - 3,121 SF ±
- Building B - 1,114 SF ±
- VC-2 zoning district offers variety of uses permitted by right
- Visible location with great signage
- Ideally located for business and consumer access
- Proximate to densely populated residential neighborhoods
- Quality demographic profile
- Easy access to New Hope and Doylestown
Description
An excellent opportunity to acquire a well-located multi-use property in Lahaska, PA. The offering includes two freestanding buildings with a total combined area of 4,235 square feet. The front building is an office/residential property currently vacant, while the secondary building is occupied by a long-term, well-performing tenant. Backing up to the renowned Peddler’s Village, the property benefits from overflow traffic from this popular destination. With strong visibility and access along Route 202, and located in one of Bucks County’s most affluent areas, the property enjoys a robust demographic profile and a densely populated mix of residential and commercial properties.
Prime commercial location in immediate proximity to Peddler’s Village, a vibrant and highly visited destination with a mix of specialty shops, dining, and year-round events. Just off the intersection of Routes 202 & 263, and ideally positioned between New Hope (5 miles) and Doylestown (6 miles). Excellent visibility and accessibility for both local and regional traffic.

