Small Office Space Sarasota
3616 Webber St
Sarasota, FL 34239
Highlights
- Located within an active strip center
- Surrounded by offices, restaurants, retail & service businesses
- Multiple affordable office options
- Second floor units from 175 SF - 400 SF
- Mix of first and second-floor availability
- Central Sarasota location near major corridors
Description
American Property Group of Sarasota, Inc. presents 3616 Webber St, Sarasota, FL
Property Type: Office Space for Lease
Spaces Available: Multiple units ranging from 175 SF - 400 SF
Located within a well-positioned neighborhood strip center, this property offers convenient access and strong visibility surrounded by a variety of established tenants, including offices, restaurants, retail, and service-based businesses. This central Sarasota location provides an ideal setting for small businesses seeking an affordable and professional workspace with nearby amenities.
Electric, water, and trash pick-up are included in the monthly rate (Absolute Gross).
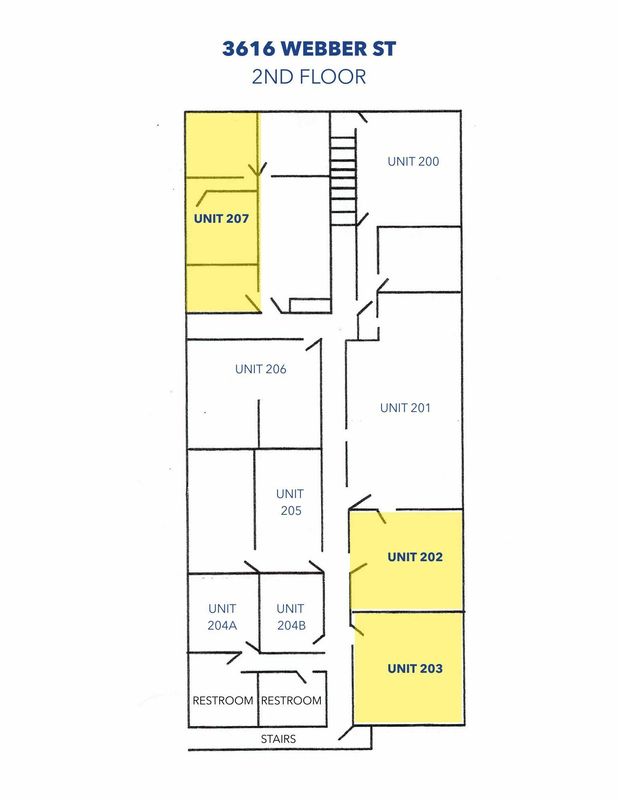
Available Units (Current):
Unit 207 | 2nd Floor | 600 SF - $900/mo
This larger suite features five individual rooms, a newly installed countertop and sink in one of the rooms, retextured and freshly painted walls and ceilings, and updated lighting. A window allows natural light into the space. Electric, water, and trash pick-up are included in the monthly rate.
Unit 203 | 2nd Floor | 200 SF - $475/mo
An efficient open-layout office ideal for small operations or solo users. This unit includes a window providing natural light and a flexible configuration.
Unit 202 | 2nd Floor | 175 SF - $350/mo
A compact open-plan suite suitable for a private office, small administrative use, or professional workspace.
Very busy plaza on Southeast Corner of Webber and Beneva in Sarasota.
Documents
Lease Brochure 3616 WebberUnits for Lease
Price Per Sqft/Month: $900.00
Price Per Sqft/Month: $475.00
Price Per Sqft/Month: $350.00

